Keva Pension Fund Office Building
Completed in 2005, the office building in central Helsinki brings the organisation’s previously scattered workplaces under one roof.

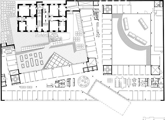
Keva Pension Fund Office Building was as a result of an invited architectural competition won by Käpy & Simo Paavilainen Architects. It is located in Kaisaniemi area in Helsinki city centre. The building enabled workspaces under the same roof for all the Keva employees, who were previously scattered in different offices around the centre of Helsinki. The construction was completed in 2005.
The winning entry was depicted exceptionally sculpture-like. The building has ten floors from which two are located below the ground level. In the basement floors, there are spaces for archive and storage functions as well as parking. The reception and customer services are located on the first level. On the second floor, there are an auditorium, conference rooms, and a restaurant. The upper floors include the working spaces of the employees. There was an old building on the construction site. It was renovated as a part of the new complex; it is mainly used for conventions.
The facade to the street side is clad with light yellowish natural stone and the ones on the courtyard with green-patinated copper boards. There are two pieces of sizeable artwork in the public spaces of the building, Helena Hietanen, and Jaakko Niemelä`s “Metsä” and Marianna Uutinen`s “Being”. These came as a result of an art competition held in 2004.
Sources:
http://news.cision.com/fi/keva/r/kuntien-elakevakuutuksen-uusi-toimitalo-valmistunut,c134657
http://www.ark-paavilainen.fi/works/KEVA/KEVA.htm
Location
Unioninkatu 43, Helsinki
Get directionsGallery






























