Pirkkala Church
The church is based on a clear idea of framing, in which the building and its spaces are arranged to relate the building to its surrounding landscape and to the act of worship.

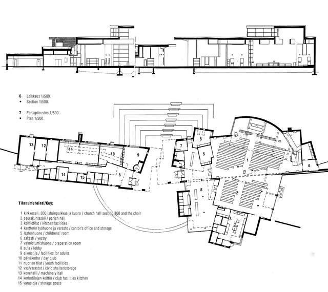
The core issue in Pirkkala Church is framing. The elongated volume defined by the church and the adjacent parish clubhouse borders a landscape of fields where the Pyhäjoki river flows in its shallow bed, almost invisible. Towards the south, the church and the edges of the forest frame a yard with the belfry as its centre. A wide gate opens between the church and the clubhouse, framing a scene of the Pyhäjoki landscape. The view is simple yet evocative.
The gate lends monumentality to it, and a wide grass stairway forms an observation terrace for this pastoral scene. The enframing theme continues in the interior, culminating in a concave altar space, lit from above and the side, which provides a frame for the altar itself.
The design for the church was selected in a competition among six architectural firms in 1989. The winner was an entry called “The Sacred River” by Käpy and Simo Paavilainen. Before the actual design began, however, the original plan of rooms and space was reduced by almost 50%, with cuts mostly involving the clubrooms and offices.
Most of the skeleton was cast in situ in reinforced concrete. The façades are mainly of yellowish brick with joints of the same colour. The curved surfaces are finished with render, float and set work. The outermost layer is the same colour as the brick surface. The gate is a cold concrete construction finished with painted cement plaster. The interior walls have plastered surfaces painted in a yellowish-white colour matching the brick. The curving background of the altar was mottled by adding linseed oil to the plaster. The work was done by the plasterer Olli Saari.
The floor heating of both buildings employs water circulation. The floor of the church interior and the clubhouse are of grey limestone from Saaremaa, Estonia. The floors of the vestibules are of yellowish brick tile. The windbreaks are clad with copper.
Reddish stained birch is used for the acoustic cladding. On request of the congregation, the altar, pulpit, altar rail, lectern and font are all detachable items. Theses and the seven meditation niches and also half of the front of the 20-register organ are made of undyed oak. The font basin and the candlesticks were made in Estonia from yellow Saaremaa dolomite. The presence of Saaremaa in the church is explained by the fact that it is the Estonian twin congregation of Pirkkala.
The artist Ossi Somma has made the altar crucifix from patinated aluminium. The altarpieces for the seven meditation niches were made by Tuula Lehtinen. The church textiles are by Raija Rastas. The wedding rug was designed by Jukka Vesterinen.
Source: Finnish Architectural Review 1/1995
Location
Perkiöntie 40, Pirkkala
Get directionsGallery























