Tritonia Science Library
Tritonia, the shared library of three universities in Vaasa, faces the sea with terraced reading halls that step back from a large glass wall.

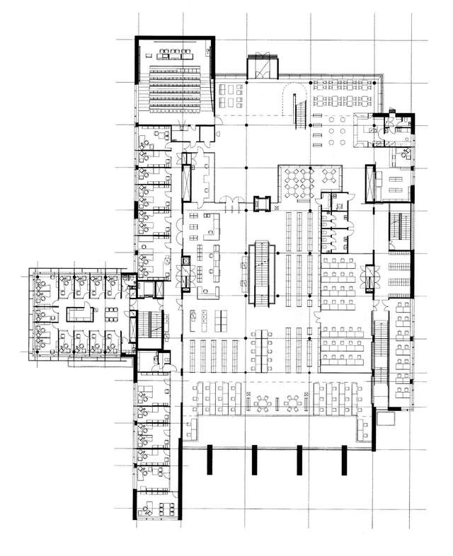
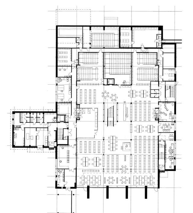
Tritonia is the common library and learning centre of three universities: Vaasa University, Åbo Akademi University’s Ostrobothnia Unit and the Swedish School of Economics and Business Administration Vaasa Unit. The building is located in the centre of the campus of Vaasa University. The placement and shape of the library follow principles discovered in the design competition for the campus from 1985.
Its location on the shoreline has strongly influenced the design of the library. The building is directed to face the sea view through its four-storey-high glass wall, and the floor levels forming the reading, and working terraces increasingly step back from the glass walls as one goes higher up in the building. The sea landscape forms the context from which the great reading hall is born, on the balconies of which the different library departments are located. The large space silences the visitor and ennobles the whole reading event. Seminar rooms and offices surround the reading and collection spaces. The tower part contains researcher rooms on five floors.
Text: Finnish Architectural Review 1/2002
Location
Yliopistonranta 7, Vaasa
Get directionsGallery




























