Munkkiniemi Service Centre
The building combines a service centre and a health centre, featuring varied façades and an interior designed to encourage interaction.

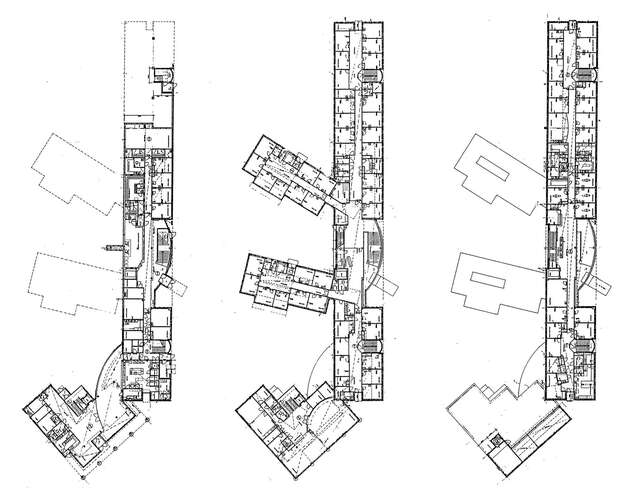
In spring 1989, the City of Helsinki Public Works Department organised an invited design competition for the Munkkiniemi service building, involving four architects’ offices. Further work on the winning entry Saarinen kunniaan (’Honour to Saarinen’) began in January 1989 with demands to cut costs and reduce the design.
Viewed from Professorinaukio Square, the service building is an entity the main part of which is the service centre, despite its small size. The gable of the larger health centre is merely an accompaniment. The service centre has round pillars, a frontcourt and a fountain to emphasise its status as a public building. The health centre attempts in its length to match the scale of the neighbouring office building. Only two doors link the buildings, and their only joint function is the dining hall.
The streetside elevations of the building are clad in red ceramic tile, the same as in the stairwell towers of the neighbouring building. The yard side elevations are in white concrete, to ensure lightness. The elevations are made of elements. The rhythm of the elements and windows is random, following the needs of the rooms beyond.
The interiors are intended to dispel the atmosphere of the social service and to emphasise interaction and conversation.
Text: Finnish Architectural Review 2/1995
Location
Laajalahdentie 30, Helsinki
Get directionsGallery






















