Suvantopuisto Senior Housing
The Suvantopuisto senior housing complex offers a mix of regular and assisted living units with a nod to the area's industrial heritage.

The senior housing complex in Suvantopuisto in Tampere reflects the current diversity of housing and one of its most recent trends. The real estate market knows that the post-war generations are returning to city centres from the suburbs.
The co-operative Suvantopuisto harmonizes with the surrounding urban space. The assertive redbrick mass defining the corners of the site repeat the urban typology. The gap between the brick components and the carved copper-covered piece opens up space in terms of living and offers views to different directions.
On the façades facing the street, the balconies are integrated into the mass, retaining the unity of the simple brick block effect that reinforces the association with the Tammerkoski factory and other industrial buildings in the surroundings. The fenestration of the redbrick building blocks is repeated evenly like in the old factories.
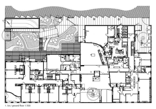
Apart from the regular apartments, there are units with assisted living facilities that are located on the two bottom floors.
The building was designed by Ilkka Laitinen and Marja Salonen from Quad Architects. They were assisted by Eeva Sääskilahti, Milja Virkkunen and Sami Maukonen. Landscape architects Petri Eurasto was in charge of the landscape plan.
Source: Finnish Architectural Review 2/2008
Location
Näsilinnankatu 46, Tampere
Get directionsGallery
















