Helsinki University Main Library Kaisa
The most ambitious project of the Helsinki World Design Capital year 2012, Kaisa House has a brick façade punctuated by arched openings that reflect its flexible interior.

Kaisa House represents state-of-the-art, award-winning library architecture.
Anttinen Oiva Architects won the architectural competition held in 2008. The jury regarded their entry “Avaus” [opening] as both bold and personal and engaged in the cityscape. The brick façade chequered with small square shaped windows is successfully aligned with sculptural arched “openings”. With its façade the building adapts to its surroundings and yet stands out.
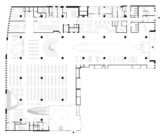
The starting point and also the main objective for the building’s architectural design was spatial flexibility. The spatial design is based on a series of openings in the intermediate floors. Three distinct apertures and the main staircase form a sequence of spaces, which gives the interior a unique ambience as well as demarcates the functional zones and defines the façade architecture. The architectural concept of the façade directly reflects the functional solutions of the interior.
A department store and parking garage once stood where this imposing building now takes its place along the busy Kaisaniemenkatu street. The University of Helsinki Main Library was the most ambitious project of the Helsinki World Design Capital year 2012, shaping both the cityscape and services.
“Kaisa House is trendy, which in this case means a genuine interpretation of the zeitgeist rather than shallow allegiance to a passing fad or superficial trimmings. The architecture is novel, yet timeless. An impressive effect has been achieved with a few broad strokes, and along with the grand gestures there is an overriding sense of calm about the building. Kaisa House has been skilfully fitted into the challenging cityscape by harmonising it with the spirit of the existing buildings. In this case, to demolish the old building and replace it with a new one has been a wise decision.”
Kaisa House was presented at ‘Mind-Building’, Finland’s exhibition at the 16th International Architecture Exhibition of La Biennale di Venezia in 2018 under the chapter ‘Mind-Building’.
Source: The Finlandia Prize for Architecture 2014 shortlist
Location
Fabianinkatu 30, Helsinki
Get directionsGallery
































