Dance House Helsinki
Dance House Helsinki extends the former cable factory with a distinctive aluminium-clad façade and halls arranged around a glass-covered courtyard, and it maintains the industrial character of the original building while offering flexible performance spaces.

Nokia’s former cable factory in Ruoholahti has been in cultural use for 30 years already. Today, the Cable Factory is a centre for artists, galleries, museums and events, including various professional and recreational dance groups.
The Dance House Helsinki is the first extension in the Cable Factory’s history, and a balance has been sought between the users and the building respecting the industrial history of the building, while at the same time providing flexible opportunities for a wide range of activities.
Two architectural offices: ILO architects, led by Pia Ilonen and JKMM Architects headed by Teemu Kurkela formed the design consortium of the project. Ilonen and Kurkela and their design teams researched alternative placement locations and implementation models. In the end, it was decided to reuse the factory’s former heating plant and to build the new part next to it. The external financier’s requirement of a new building also contributed to this decision.
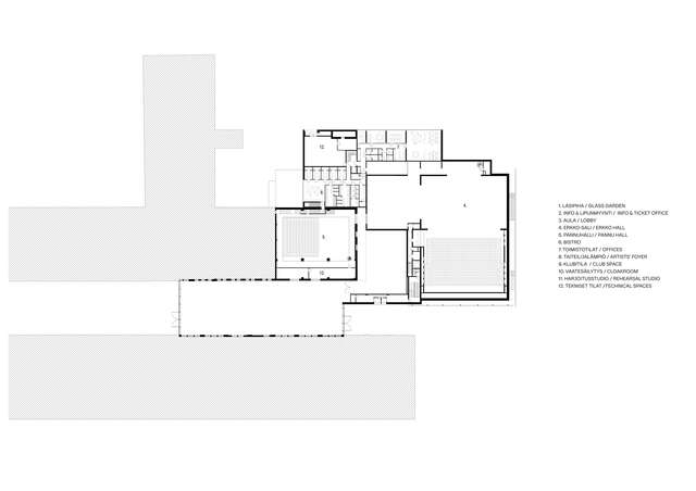
The building’s frontage stands out from its surroundings. The facades’ marine-grade aluminium circles, which may have been inspired by a dancer’s lace tutu, convey the message that this is a public building. The corten steel and acid-resistant steel surfaces implemented using an innovative fastening technique elevate the exterior architecture of the new section to an international level.The room programme for Dance House Helsinki is simple with two different-sized halls, one of which is a full-scale theatre auditorium with a side stage, and another smaller one. The main entrance leads into a glass-covered internal courtyard, creating a hub for all the various functions of the Cable Factory.
Source: Finnish Architectural Review 5/2022, Esa Laaksonen’s review
Finlandia Prize for Architecture 2023 Pre-Selection Jury report:
When Dance House Helsinki opened its doors in February 2022, the moment marked the conclusion of many decades of persistent effort. The venue is the first ever event and performance space dedicated to the dancing arts in Finland but, given the scarcity of similar purpose-built venues elsewhere, it is also unique internationally.
Dance House Helsinki has been built as an extension to the eastern end of the city’s Cable Factory cultural centre, with some of its facilities based within the former factory building itself. Designed by W G Palmqvist and built between 1939 and 1954, the Cable Factory remained for many years the largest building in Finland. To this day, it is the country’s largest cultural venue.
The Cable Factory’s vast and soaring Glass Courtyard, created by glazing in a section of the adjacent outdoor area, serves as Dance House Helsinki’s entrance and foyer. The Glass Courtyard is also a social space for the Cable Factory as a whole and additionally provides access to the museums that are based here.
Dance House Helsinki comprises two black box theatres complete with state-of-the-art performance equipment. The 700-seater Erkko Hall, situated in the newly built extension, has steep seating offering unimpeded views of an unelevated stage. The 235-seater Pannu Hall takes its name from the boiler that was once housed here. Its use as a theatre predates Dance House Helsinki. The venue also features offices, social and rehearsal spaces for performers and a restaurant complete with kitchen and dining area.
Viewed from the outside, Dance House Helsinki gives the impression of an enormous piece of industrial machinery that has been added to the side of this historic manufacturing facility. In contrast with the Cable Factory’s brick facades, Dance House Helsinki is clad in metal throughout. Two of the elevations have been installed with suspended cladding, one featuring reflective and the other pre-rusted steel. The remaining elevations are covered with aluminium discs that come together to create a rhythmical visual pattern. The interiors have a pared-down, minimalist aesthetic, featuring untreated timber cast concrete surfaces, self-rusting steel and a colour scheme dominated by greys and blacks. Expanses of existing brick and concrete have been left visible as a reminder of the building’s industrial heritage.
Dance House Helsinki succeeds in offering an excellent setting for the dancing arts. The building in its entirety is the work of two architectural practices, JMKK Arkkitehdit and ILO Arkkitehdit.
Location
Kaapeliaukio 3, Helsinki
Get directionsGallery































