Academy of Fine Arts, Mylly
The University of the Arts’ new building blends effortlessly with its surroundings along the former industrial shoreline of Helsinki.

The disused industrial buildings in Helsinki’s Sörnäinen neighbourhood, used to belong to Helsingin Mylly ja Kauppa, a local milling company.
The idea of a shared arts campus in Helsinki was first floated in 2013 when the Academy of Fine Arts merged with the Theatre Academy and Sibelius Academy to create the University of the Arts. A design competition followed four years later. The brief was to design new premises in Sörnäinen for the Academy of Fine Arts on the vacant brownfield site adjacent to the Theatre Academy. The competition was ultimately won by a joint entry from JKMM Architects Asmo Jaaksi and Teemu Toivio, construction company Lujatalo and pension insurance company Veritas.
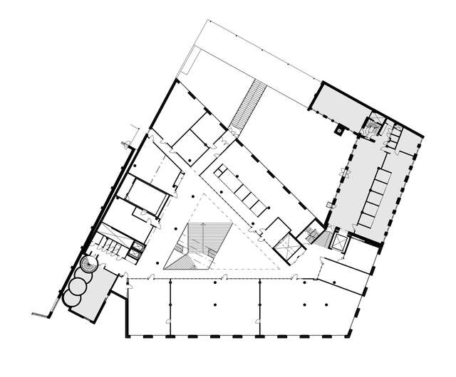
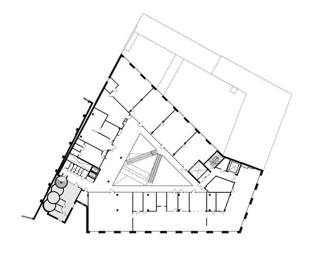
The imposing brick massing, with its rows of evenly spaced windows, asserts a confident presence among the existing developments on Sörnäisten rantatie street. The choice of material here forges a direct link with the area’s industrial past. The materials used inside are glass, smooth cast concrete and black wood cladding. Glimpses of the old building, visible around the edges, are an added fillip.A building like this won’t be fully complete until it’s covered in paint stains, Asmo Jaaksi points out. He and his team have delivered on their client’s vision to create an adaptable, flexible open space with an industrial character.
Extract from Elina Koivisto’s review: https://www.ark.fi/en/2021/05/a-new-home-for-the-arts/
Location
Sörnäisten rantatie 19, Helsinki
Get directionsGallery



































