Osuustukkukauppa (OTK) Headquarters
Completed in 1933, the OTK Headquarters is a red-brick functionalist building notable for its rounded corner tower, adaptable interior layout, and distinctive paternoster lift.

The Osuustukkukauppa (OTK) Headquarters building was completed in 1933 in Sörnäinen, a former industrial district, at the corner of the district’s main artery, Hämeentie street, and Käenkuja alley. The building was designed by Väinö Vähäkallio together with Georg Jägerroos and Antero Pernaja. Vähäkallio’s previous works include the Elanto Headquarters nearby on Hämeentie and Yrjönkatu Swimming Hall in Helsinki, both completed in 1928.
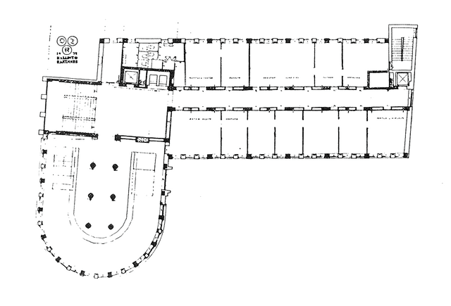
The rounded corner tower of OTK Headquarters makes it a landmark building representing red brick functionalism typical of Vähäkallio. Originally, the multi-storey building housed, in addition to office facilities, a shop, lecture hall, canteen and chemical laboratory. In addition to a regular lift, the building has a rare, still-functioning paternoster lift without doors. The high entrance hall has a wide double staircase with Art Deco balustrades. The main staircase and the entrance hall are both protected.
The facade materials used in the building are dark red brick and aluminium plate. The plinths and entrance area are made of granite. The facades’ brickwork is horizontal, and the corner tower has ribbon windows.
In contrast to the simple facades, the interiors are decorative, with a variety of materials combined with clear forms. Green marble is used in the entrance hall, and each floor has a coloured each floor has a different-coloured geometric vinyl tiling reflecting the light coming through the windows. The third-floor meeting room retains the original furniture designed by architect Veikko Leisten. The partially preserved murals were painted by decorative painter Bruno Tuukkanen.
Vähäkallio designed the building to be modern and progressive. The spaces are convertible due to the floor plan solution and distribution of windows, as well as the structural principle based on steel pillars and light partitions, among other things. Over the years, the building has undergone several renovations, such as refurbishing the office spaces in 2009 by the Gullsten-Inkinen design agency. The glazed lift shaft is decorated with a nine-storey high artwork Väritikkaat [Colour Ladder] from 1989 by artist Mauri Faven.
Location
Hämeentie 19, Helsinki
Get directionsGallery














