Helsinki Court of Appeal

The production facility of the Finnish alcohol monopoly, Oy Alkoholiliike Ab (Alko), designed by architect Väinö Vähäkallio, was one of the most significant industrial projects in Helsinki in the 1930s. The Head Office, built-in connection with the industrial facility was designed to be a total work of art, right down to the detailing of the interior and the furnishing. Väinö Vähäkallio was accompanied by architect Antero Pernaja in the design of the complex.
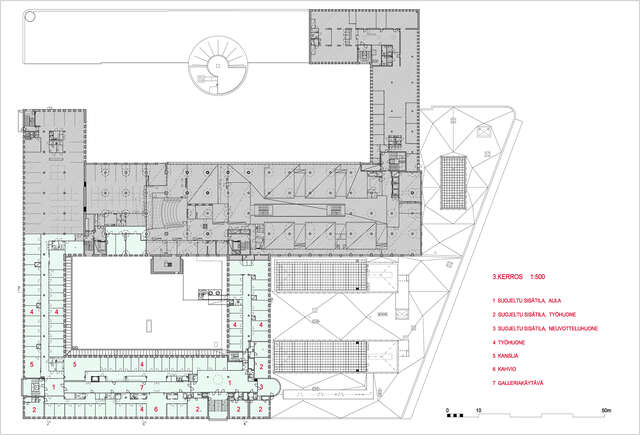
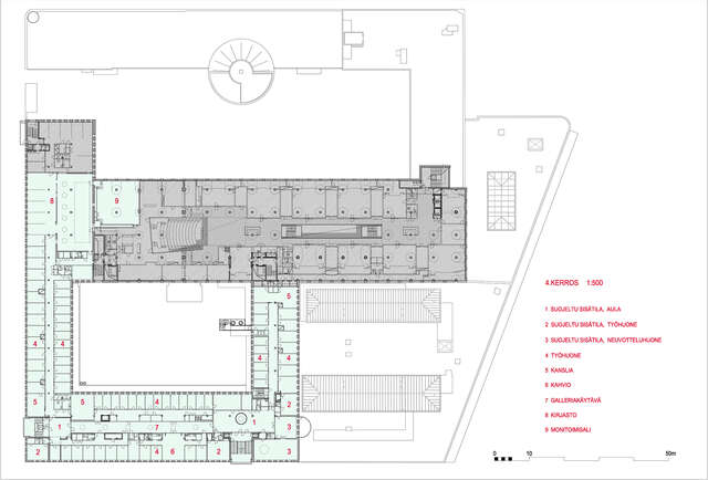
A major part of the industrial and warehouse facilities was refurbished for the use of the District Court in the early 2000s. The most sensitive part of the building complex, the former Head Office and appended facilities were converted for the use of the Court of Appeal. The principal architect of the project was Tuomo Siitonen.
The authenticity in the appearance of the hall space and main corridors were preserved in the refurbishment. The recreated, patterned rubber floorings and colour schemes played an important role in this. The restoration of the silver plating of the lobby area columns adds detail to the new scheme.
The stairwells’ appearance is dominated by a Modernist whiteness, contrasting with the green synthetic flooring. Among the gems of the interior is a top-lit space, originally designed as a dining hall. Court of Appeal’s library was fitted to the restored hall.
Many of the interior spaces that had already been altered several times offered a clean slate for modernisation. The first-floor workshops, storage areas and garages had already before been converted into offices and labs. The building skeleton was refurbished to form rows of courtrooms. The offices on the second and third floors of the wings were cleared out and renewed.
Text: Finnish Architectural Review 2/2011
Location
Porkkalankatu 13, Helsinki
Get directionsGallery





















