Jallukka House for Musicians
Jallukka, a music-focused housing project in Jätkäsaari, features a mix of flats for musicians with communal spaces, rehearsal rooms, and a bar, all wrapped in a combination of corten steel and grey brick.

In 2009, Helsinki’s Live Music Association ELMU initiated a project to develop affordable rental flats for people in music business – vocalists and musicians as well as technicians and roadies. In 2013 the City of Helsinki appointed a plot for the project in the new city district of Jätkäsaari. Architect Pia Ilonen from Talli Architecture & Design was commissioned to conceive the design, and in 2017 Jallukka was completed.
The atmosphere of the Jätkäsaari area – still largely under development – is maritime yet urban with street-side shops, accessible cycling and walking routes as well as comprehensive tram traffic. Jallukka is situated in a dense urban fabric off the traffic arteries. In the alley-side corner of the J-shaped building there’s a bar appropriate to a musicians’ house.
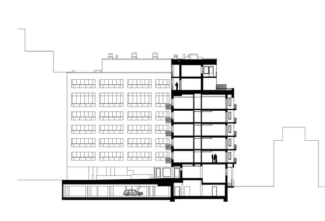
The eight-storey building consists of two wings: one with 25 flats for musicians accessed via a gallery and the other with 49 regular rental flats served through a central corridor and in the two top floors access balcony. The wings are connected by a staircase with an elevator. The ground floor has two-storey apartments with windows on the opposite walls and direct entrances from the street and the courtyard. The sizes of the flats vary from 30 to 75 square metres and each one has a private balcony. The 5th floor flats of the musicians’ wing have a greater ceiling-height allowing a low mezzanine for sleeping above the entrance and bathroom and a high living room space.
The building has extensive communal spaces and terraces, such as laundry and sauna facilities and club rooms. In the basement there are rehearsal rooms for playing music. The building shares a communal deck-structured courtyard with the other buildings of the urban block. Below the deck there’s a parking garage.
Both the interiors of the apartments as well as the exterior of the building have a strong material sense. For example, the concrete surface of the partitions between the flats is left bare. The choice to use straight-forward materials is partly justified by aiming for reasonable-cost housing. The alley-side facade is of light grey handmade brick whereas the recessed top floors are covered with profiled aluminium sheeting. The musicians’ wing is enveloped in corten steel – bringing to mind the colour of Jaloviina, a Finnish cut brandy often favoured by rockers.
Location
Malagankatu 3, Helsinki
Get directionsGallery




















