Youth Homes

Extract from the Finnish Architecture Biennial Review 2014 jury report:
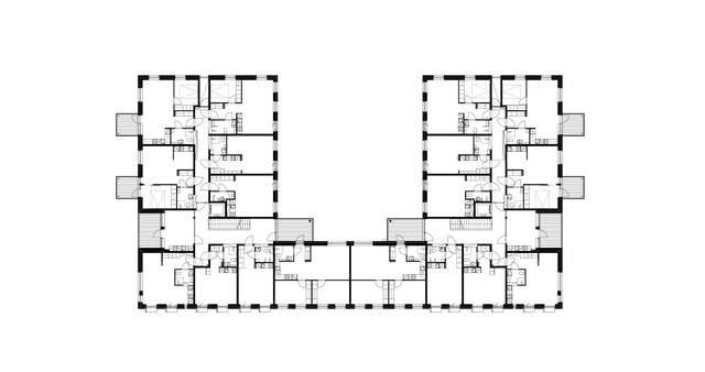
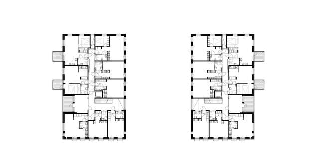
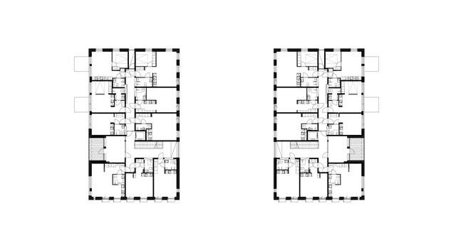
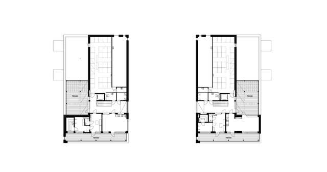
“The exterior comes together in broadly sketched lines, achieving a crisp, clean effect that is heightened by stark contrasts in the sweeping surfaces. The flats are designed for good functionality, and the placement of the common saunas and recreation rooms on the top floor engenders a sense of equality among the residents.”
Architect
Competition
2010
Completion
2013
Gross Area
5500 m²
Category
Tag
Location
Välimerenkatu 13, Helsinki
Get directionsGallery











0) { resetZoom(); currentImageIndex--; currentImage = images[currentImageIndex].src; }"
@keydown.window.arrow-right="if (currentImageIndex < images.length - 1) { resetZoom(); currentImageIndex++; currentImage = images[currentImageIndex].src; }">
/







