Savotta Daycare Centre
Savotta Daycare in northern Helsinki is an 80-child facility integrated into its neighborhood with natural materials and a transparent interior.

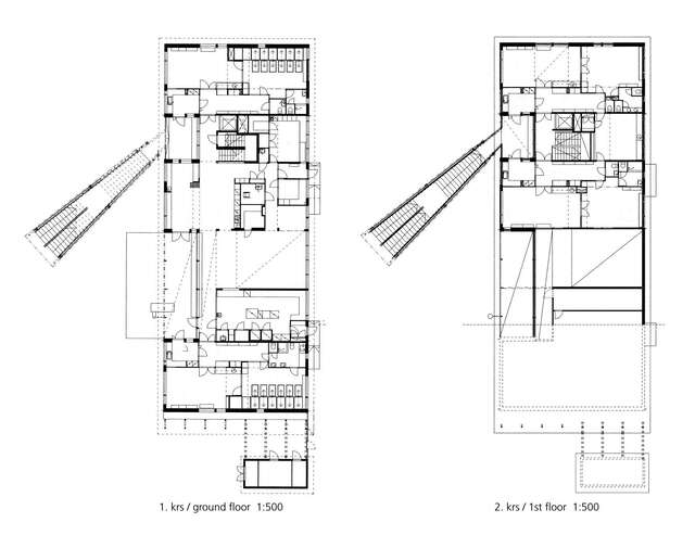
Savotta is a daycare centre for 80 children in northern Helsinki. The two-storey daycare centre was integrated into a small-house milieu with a wedge-shaped mass, the lower end forming a part of the streetscape. The dark colouring of the elevations matches the surrounding greenery and visually shrinks the building. The turf roof of the longer slope slows down rainwater gushing to the gutter at the short end.
The exterior timber frame was clad with specially profiled shiplap boarding and the external stair with sheet metal, profiled in the same way. The building has loadbearing concrete walls, arranged transversely in relation to the length of the building mass. Loadbearing concrete walls were cast in-situ using plywood shuttering and the rough surface was left exposed.
The interior is characterised by transparency. The choice of materials and colours was dictated by the principle of the natural colour and feel of the material. Floor finishes include varnished, heat-treated birch and red studded rubber flooring; ceilings are mainly lined with acoustic wood-cement chipboard and furniture is of stained wood.
Touching and playing with the artworks by Inka Nieminen, is allowed – at the sand-pit children can play with three concrete monkeys.
The principal architect of the building was Minna Lucander. She was assisted by Riitta Tuomisto. Savotta was completed in 2002.
Text: Finnish Architectural Review 5/2002
Location
Puunkaatajantie 16, Helsinki
Get directionsGallery






















