Kirkkonummi Main Library Fyyri
With the old library structure kept intact, Fyyri envelops its predecessor in a new form that supports new ideas of what a public library can be.

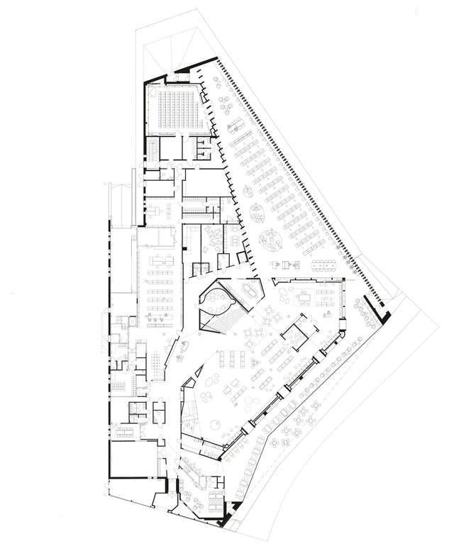
Kirkkonummi Main Library is an adaptive reuse project, which utilises the concrete structure of the original library building from 1982 designed by Ola Hansson. The original building has been retained in full and incorporated into Fyyri. The principal designer of the new building is Teemu Kurkela of JKMM Architects.
The library represents a new generation of Finnish libraries. Libraries are no longer solely about books but about sharing knowledge and experiences through multiple channels. The new library is introducing a large variety of commodities for community uses such as rooms for toddler group activities, youth clubs as well as exhibition areas and spaces for events and performances. The state-of-the-art audiovisual equipment, a music studio and rehearsal spaces are available to visitors, as are the sewing machines and other equipment for DIY activities.
The main entrance to the library is located in a spot where the historic King’s Road, Finland’s medieval highway, bends. The copper shingle clad building has a concrete structure which wraps around the main reading hall’s interior. The post and beam membranes are left exposed and filter natural light into the space. An informal reading room looks up towards the tower of the medieval stone church and gives onto a 50 meter long sheltered terrace.
Special attention is paid to the children and youth section, echoing the coastal theme in its details. A large scale fitted playing unit with an integrated felt intarsia art piece, invites children to play and release energy. In addition, the youth section focuses on relaxing and spending time while enjoying the books.
The reading rooms at Fyyri respect the Finnish Modernist tradition of libraries that ennoble the idea of books and learning through their highly crafted design and carefully detailed interiors. At Fyyri, the interiors include bespoke lighting with brass fittings. Brass is also used in the library’s new entrances and hand railings in a way that is inviting and intuitively leads visitors through the public areas.
Location
Kirkkotori 1, Kirkkonummi
Get directionsGallery


































