St Paul’s Church
Designed by Eliel Saarinen, the church in Tartu was fully restored in the 2000s after wartime damage and decades of altered use, now serving both liturgical and concert functions.

Architect Eliel Saarinen was chosen to design the church for the Evangelical-Lutheran congregation in Tartu. The first design was presented in 1911. Saarinen’s original design was a symmetrical building with a tower in the middle and two side wings, all in red brick.
When the church was taken into use in 1917, the design had changed, but the main idea had prevailed. Only one of the side wings was realised, and the church hall balconies – originally thought to be constructed in concrete – were built in wood. The interior bathed in natural light from the narrow vertical windows on three sides.
In 1944, the church was hit by a bomb and suffered serious damages. After some repairs, it was used as a storage and the side building as a sports museum. Furthermore, the church had lost its metal-covered spire.
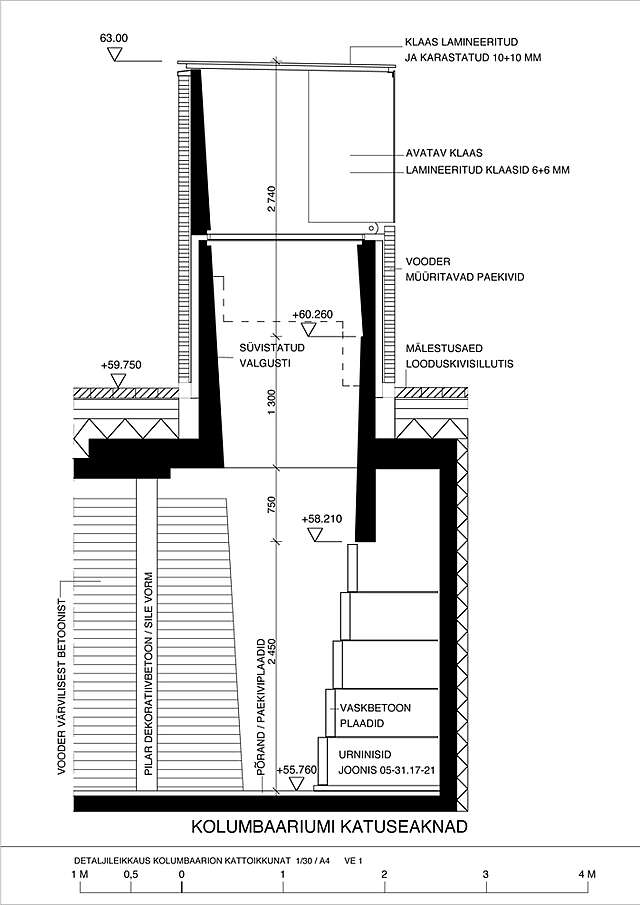
Around the year 2005 the idea rose to reconstruct and restore the church. Plenty of money had to be raised. Helsinki-based architects Merja Nieminen and Kari Järvinen worked meticulously and studied all possible sketches and drawings available. New balconies were built in concrete, and the church hall with excellent acoustic qualities also got a new use as concert hall. New benches and a new altar were designed, in collaboration with Finnish artists. A completely new columbarium was created in the basement and a beautiful memorial garden in the back of the church. The side building got new functions and the tower was brought back to its glory. The church was reopened to the public in 2015.
In 2016, the renovation of St Paul’s Church was awarded with an important Estonian Cultural Heritage award and in 2017 it was a finalist for the Finlandia Prize for Architecture. The project was also selected in the Finish Architecture Biennial Review 2018. Extract from the jyry report:
“The project can be regarded as a tribute to Saarinen’s architecture and a resurrection of the spirit of the church. With thoughtful restoration and new additions, the architects have made the fragments work beautifully as a Gesamtkunstwerk.”
Text: Tarja Nurmi
Location
Riia 27, Tartu, Estonia
Get directionsGallery






























































