St. John's Church

The aim of the plan of the St. John’s Church in Männistö district, Kuopio was to achieve a stable spatial organism, formed by the existing environment together with the new buildings, which in terms of the townscape is based on growth in progressive stages. The church was designed by Juha Leiviskä and Pekka Kivisalo (Helander Leiviskä Architects).
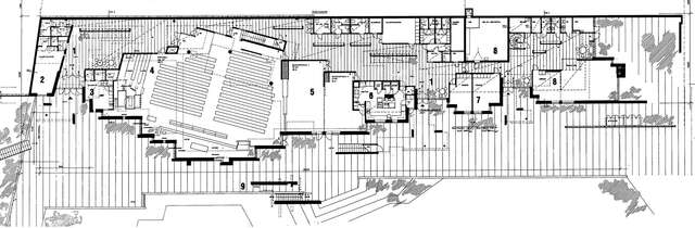
The church, the parish centre and the local authority leisure centre were raised up on the slope (contrary to the original town plan) as a plinth to the backdrop of 1960s high rise housing blocks.The high space of the church itself complete with its belltower, at the southern end of the complex, dominates the view.
The park area in the foreground was left as extensive and uninterrupeted as possible and the fine group of pinetrees to the north of the site were preserved as part of the park. Between the housing blocks and the new buildings an intimate pedestrian milieu was created which is bordered by the fences and planting of the upper level courtyards.
The overall effect is the same as in ancient hill villages and towns. The entrances to the church and the parish centre were situated at the lower level, on a raised terrace facing the park. Because of the hillside solution, the foyers meander below ground level, behind the halls and are quite narrow in places.
The church and the parish hall are approached from two directions, past groups of watercolours by Mirja Airas depicting the life and work of Paavo Ruotsalainen, which are toplit by rooflights. The foyers act as transitional spaces between the great outdoors and the main rooms, so that there are no local emphases in them, which would draw power away from the church itself.
The most important building material of the church is daylight which affects the space mainly as indirect reflections, which are at their most intense in the late morning, during morning service. Markku Pääkkönen has used these reflections as material for the large altarpiece.
Source: Finnish Architectural Review 2/1993
Location
Tähtääjänpolku 1, Kuopio
Get directionsGallery






















