Kuopio City Theatre
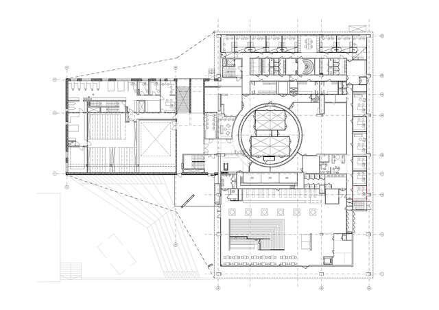
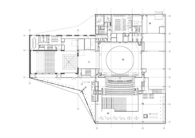
The extension to the original 1960s theatre hides behind the restored building, subtly raising the stage tower and adding a contrasting volume to the original architecture.

Located on the edge of the town centre, the original theatre building by Helmer Stenros and Risto-Veikko Luukkonen is a clean rectangular volume with the stage tower rising above it as a landmark. The bold new extension by ALA Architects unfolds behind the old building, providing an intriguing contrast to the 1960s architecture.
Sharp-eyed observers will notice something different about the stage tower: it has been raised. The annex itself is invisible when the building is approached from the town centre. This ingenious solution allows visitors to admire the restored architecture before the extension reveals itself. The carefully selected materials match the original interior scheme, with every detail fusing together in harmony. Functionally, too, the annex is perfectly integrated with the old theatre. The industrial steel beams are a brilliant solution tying together the old and new sections. The wrinkled three-dimensional white concrete panels add ‘wow’ factor to the simple, rectangular extension.
Source: Finnish Architecture Biennial Review 2016 catalogue
Location
Valkeisenkatu 3, Kuopio
Get directionsGallery























