Lumit Upper Secondary School
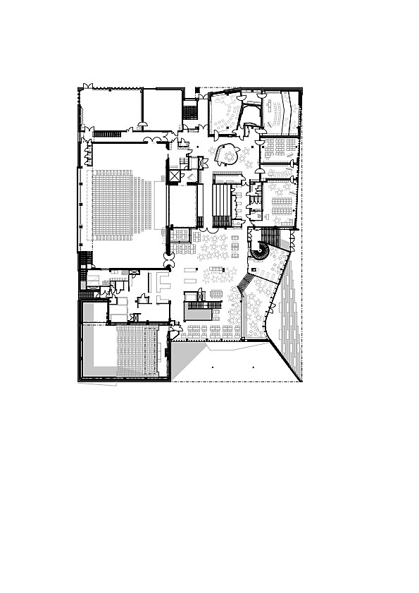
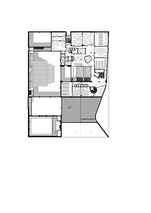
The interior of this Kuopio school is organized around a tall, naturally lit central hall that supports performances, circulation and everyday school life.

The Lumit school, designed by Lukkaroinen Architects and VSU Landscape Architects, was developed as part of an urban plan that emerged from a 2016–2017 ideas competition. The plan organized new buildings—a school, hotel, congress centre, and residential blocks—around the existing Music Centre, creating a cohesive urban environment. To the east of Hallikatu street, the plan reserved space for a future park, tying the area into the lakeside park and Market Square. Lumit’s design emphasizes harmony with its surroundings, dividing the building into a lower section aligned with the Music Centre’s eaves and a taller section matching the height of nearby residential blocks. A mid-wall brick pattern visually links the sections, while recessed entrances to the south and east mirror the Music Centre’s forms, creating continuity across the urban fabric.
The school’s facade combines traditional and modern materials. The eastern entrance, timber-clad and fronted by auditorium steps, anticipates the completion of the adjacent park. The building’s light grey brickwork contrasts with the Music Centre’s red bricks but maintains a connection through shared textures. The facade design, with its mix of curved glass, brick, and timber, reflects recent public architecture trends, while its yellow tones echo the ochre wooden buildings of the nearby Yhteiskoulu school.
The building’s interior supports its arts-focused curriculum with flexible and multifunctional spaces. Classrooms and workspaces line the perimeter, leaving hallways, lobbies, and a central hall at the core. This central space, lit by a large roof lantern, forms the heart of the building. The second-floor lobby offers views of Kuopio Cathedral, a feature that will become even more striking when the adjacent gravel field is transformed into a park. Auditorium stairs in the central hall lead to a stage that connects seamlessly to the gym, banquet hall, and lunchroom, enabling a variety of performances and events. Additional facilities include a two-story dance hall and a 230-seat theatre, designed for both school and public use.
The architectural choices throughout Lumit reflect a balance of modernity and contextual sensitivity. Its materials, forms, and spatial organization respond to both historical influences and contemporary needs, while the design enhances its role as a key element of Kuopio’s cultural landscape. With its focus on the arts, Lumit has become the city’s most popular upper secondary school, demonstrating how architecture can support education and community life.
Source: Summary of Kristo Vesikansa’s review in Finnish Architectural Review 1/2024
Location
Koljonniemenkatu 48, Kuopio
Get directionsGallery















