Kuopio Museum Renovation and Extension
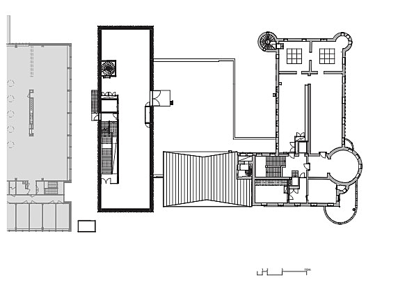
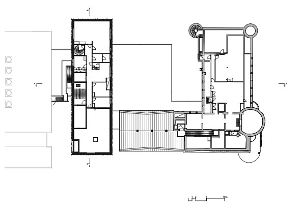
In 2020, the buildings lining the edge of the park next to Kuopio Cathedral received a new addition: an impressive, simple enclosed box resting transversely on a single-storey glass base between the old museum building and the city library.

The extension of the Kuopio Museum of Natural History and the Kuopio Museum of Cultural History, based on the winning entry by Architects Davidsson Tarkela in an invited competition, complements the Kuopio city centre’s cultural quarter: the castle-like Art Nouveau -style old museum from 1907, designed by J. V. Strömberg, and the red-brick, box-like city library from 1967, designed by Matti Hakala.
The new object protrudes impressively out towards Maaherrankatu street, but along Museokatu street, where the main entrance is located, it remains timid in relation to the office wing of the city library. Furthermore, when approaching the building from the north, the view of the main entrance is blocked by a single-storey substation.
On entering through the ethereal draught lobby, one passes into a spacious foyer with an unobstructed view through the building, thanks to the floor-to-ceiling windows. The interior spaces are beautiful, light-filled and spacious. The whole is certainly worthy of praise for its fluent functionality. The available options can be seen at a single glance – ticket sales, shop, cafe, lockers, occasional events and changing exhibitions. The only ones difficult to find are the rather small public toilets located in the basement.
The massive and stylish wooden ticket counter stands out like a beacon. Behind it is the museum shop with its delightful feeling of brightness and views out to the street. The furnishing design, with its minimalist forms and understated colours, supports the items on display. To the right of the main door is a square space for occasional events, which superbly overlooks both the outdoor exhibition courtyard and the corridor leading to the old part of the museum.
The mono-materiality of the foyer creates a calm atmosphere. The walls, columns, stairs, beams and floor are all in concrete. The skilfully designed quarter-turn stairs leading up to the exhibition floor comprises two flights: with its stepped under-side, the upper flight forms a negative of the lower flight rising from the floor. The balustrades are laminated glass, designed cleanly and without any cover strips. In the detail-free ceilings, the necessary vents are forced into line with military precision.
Source: Roy Mänttäri’s review in Finnish Architectural Review 5/2021
Location
Museokatu 1, Kuopio
Get directionsGallery
















