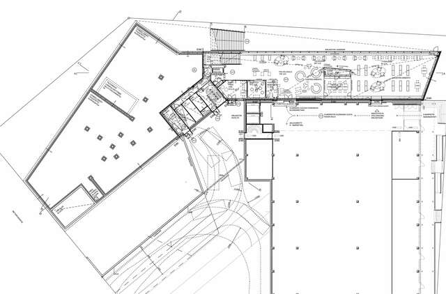
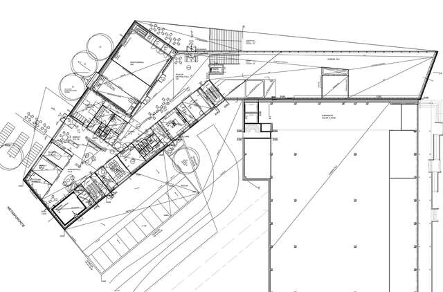
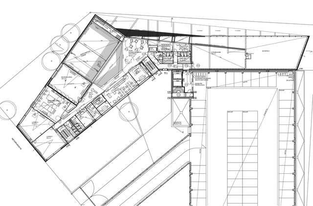
Maunula Community Centre
The community centre is the result of a participatory design process that shaped its library, youth spaces and adult education facilities to meet the needs of the local community.

Maunula is located in the northern suburbs of Helsinki. The area has suffered from social problems due to high unemployment rate, large number of low-income families and challenges of immigrant integration.
Maunula Community Centre houses a library, a youth centre and adult education premises. The design process and the architects’ working methods piloted local democracy championed by the City of Helsinki. The architects organised multiple workshops to gather information and to discuss the design principles and the organisation of spaces with the client organisations, Maunula residents and future users. Resulting from the participatory design process is, for example, the girls’ room which enables also Muslim girls to use the youth centre facilities. Another example is the lobby café run by local youth.
Maunula Community Centre was presented under the theme ‘People Make the Library’ in the Mind-Building exhibition at the 16th International Architecture Exhibition of La Biennale di Venezia.
Location
Metsäpurontie 4, Helsinki
Get directionsGallery
























