Ylivieska Church
The Ylivieska Church replaces the lost historical church with a contemporary yet traditionally inspired landmark.

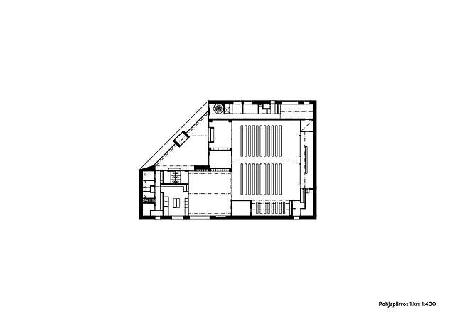
The new church reinterprets the three gables of the old cruciform church to reflect the hierarchy of its interior spaces. The tallest space is the worship hall, connected to the lower lobby and parish hall ceilings. Its design echoes the layout of the original equal-arm cruciform church, which gained a steeple and neo-Gothic style in 1892.
The church features a Greek cross layout. A bronze cross marks the eastern gable, while the western gable has a cross-shaped pattern formed by ventilation holes in the brickwork. The altar cross is wooden, and the eastern gable’s niches, symbolizing the Holy Trinity, house the old church bells.
Rustic yellow bricks from the nearby Raudaskylä brick factory link the building to early Christian basilicas. Traditional grouting methods enhance durability, conceal joints, and create textured facades that interplay with light and shadow.
The modern layout includes a lobby, high worship hall, and parish hall, illuminated by skylights and a lightwell above the altar. The entrance, framed by birches and a war graves wall, leads to an interior with a bevelled white ceiling, wooden and brick walls, and a polished concrete floor. A maintenance space above the ceiling reveals glulam frames and structural innovations.
Blending tradition and simplicity, the church harmonizes with its surroundings while standing as a focal point for the village. Its imposing yet understated design connects the past to the present, enriching the community and landscape.
Source: Summary of Miia Perkkiö’s review in Finnish Architectural Review 3/2021
Location
Terveystie 11, Ylivieska, Finland
Get directionsGallery
























