Rantarousti School

What makes Tyrnävä – a small municipality of less than 7 000 inhabitants – exceptional is the fact that about 50 % of its population are under 30 years old and the average number of children per family is four. When the need for a new primary school became obvious, the municipality decided that, besides meeting the requirements of the new national curriculum, the new school building should also express Tyrnävä’s strategy underlining bio-economy and lifecycle efficiency.
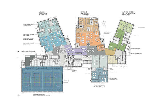
Rantarousti School, a primary school for 500 pupils from grades 3 to 6, is an open-spaced building with no specified classrooms. Most of the interior spaces can be modified and confined with curtains, furniture and sliding walls. Therefore, almost all spaces, including the central hall that functions as a dining and assembly hall, can be used for teaching. By innovative space arrangements the number of corridors and other contained spaces is minimised. Easy modifiability ensures that the rooms can be used for different purposes during the school days, resulting in a building as functional and spatially efficient as possible.
The efficient use of space also supports the eco-friendliness of the building. Additional green solutions are the use geothermal energy for heating and solar panels for generating electricity for the building’s use. Environmental thinking is also integrated in the school’s curriculum, so that the pupils not only study in a green school building but also learn how to assess and promote environmental thinking.
Text: Petteri Kummala
Location
Ketolantie 10, Tyrnävä
Get directionsGallery




















