Käpykallio Housing
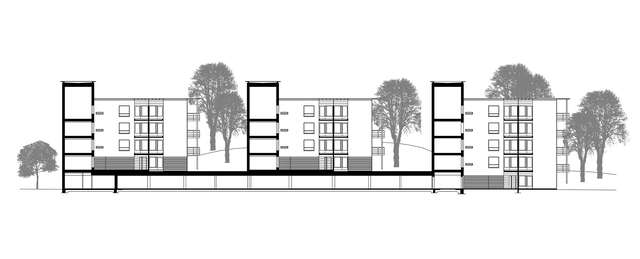
Käpykallio Housing consists of three blocks on Mäkelänkatu, designed with simple lines and top-floor apartments featuring two levels, blending into the surrounding environment.

The group of three housing blocks of Käpykallio Housing is situated on a busy Mäkelänkatu street, at the edge of the timber-built 1920s residential area of Puu-Käpylä. On the opposite side of the Mäkelänkatu, there is a vividly meandering, elongated “Käärmetalo” (Serpent Housing) from 1951. Käpykallio Housing was designed by Tuomo Siitonen Architects and was completed in 2003.
When arriving in Helsinki by the motorway, the area is perceived as the boundary of the urban cityscape. People are forced to stop and change their rhythm by traffic lights. The aim of the planning was to retain the visual axis of East and West across Mäkelänkatu street while introducing a new rhythmic element and a point of reference that defines the street space.
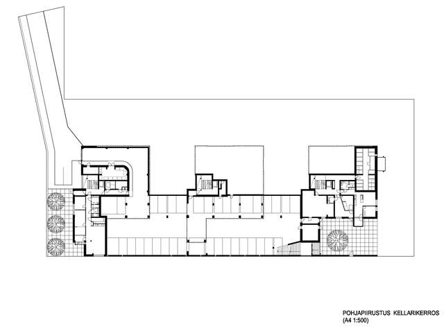
The architectural composition is based on a simple horizontal and vertical lines that define the outdoor spaces and introduce a rhythmic element to the streetscape. The apartments on the top of the building have two floors and the dark, vertical balcony projections extend towards the street line. The car park is hidden under the deck. The colour scheme of the building reflects the colours found in the surroundings. A projection reaching the street boundary, adding verticality to the composition and offering residents broad southward views down the street, has been attached to the deep-plan basic mass of the buildings.
Location
Mäkelänkatu 97, Helsinki
Get directionsGallery
























