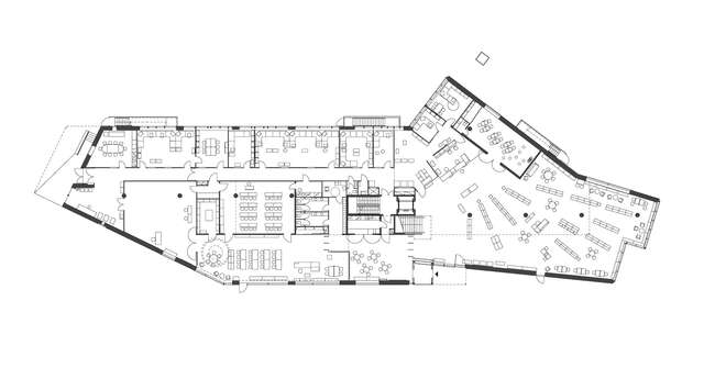
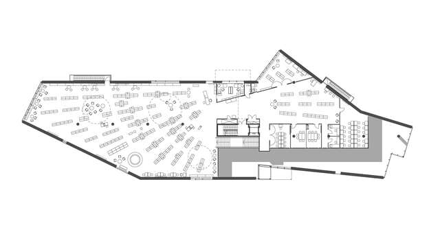
Lohja Main Library

In 1985, a new law enabled state subsidies and loans for building and renovating schools and public libraries. As a result, the 1990s witnessed an unforeseen number of new libraries built all over Finland.
Together with the libraries of Kuhmo and Joensuu, Raisio Library and Lohja Main Library, both results of an open architectural competition (1995 and 2002), are examples of the library boom and library architecture where the new building was expected to highlight, heal or finalise the existing townscape. The setting in Raisio was in a scattered and uninspiring urban structure, whereas in Lohja, the central but narrow library plot was amidst the local cultural, educational and administrative buildings.
Lohja Main Library was finalised according to the architect’s plans, more or less. In Raisio, however, the city gave little support to the architect during the design stage and many rounds of cost-cuttings were required. There was profound mistrust between the architect and the client. The architectural goals were only achieved after the contractor stepped in and convinced the client of the library’s architectural merits.
The text is an extract from the chapter ‘Placemaking’ of Mind-Building, Finland’s exhibition at the 16th International Architecture Exhibition of La Biennale di Venezia.
Location
Karstuntie 3, Lohja
Get directionsGallery






























