Vatiala Chapel
The Vatiala Funerary Chapel is a notable example of 1960s Finnish concrete church architecture, set on a scenic ridge in a pine forest.

The concrete churches of the 1960s are a special phenomenon in Finnish 20th century architecture. During that decade a wide range of sacral buildings, each very different in terms of their architecture and in different sizes, sprang up around the country. What they had in common, however, was their bold and versatile use of concrete – as well as being very high-quality architecture.
Several of the churches built in the 1960s were based on winning entries in architectural competitions held at the end of the previous decade. Inspired in particular by Le Corbusier’s sacral buildings of the 1950s, Finnish architects examined the application of the unique features of concrete in church architecture. Thinner shell structures and other concrete innovations enabled the implementation of unprecedentedly large geometric shapes. On the other hand, through the use of untreated or otherwise exposed concrete, minimalist and evocative places for ecclesiastical functions were created.
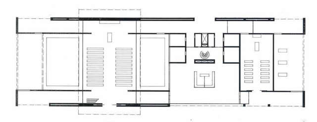
All the key features of the sacral architecture of the 1960s come together in the Vatiala funerary chapel. The building’s elongated and low overall massing conforms to the location, a ridge in a scenic pine forest. The roofs of the two chapels rise up from the base mass. The rectangular roof of the small chapel is supported by a concrete structure that protrudes out from the façades. The dominant feature of the building within the landscape is the roof of the large chapel, a parabolic shell structure, the shape of which resembles Eero Saarinen’s Gateway Arch in St. Louis, USA. The sculptural concrete structure designed by engineer Paavo Simula was at the time of its completion the first shell structure in Finland constructed using sprayed concrete against a single-sided mould.
Concrete is also the main material in the low parts of the interior, both the walls and floors. The interior alternates between more closed and more open spaces. The most powerful spatial impression, nevertheless, is in the large chapel, the arched roof of which opens the space upwards, while the large glazed side walls create a connection to the adjacent courtyards. The wooden pews designed by Olli Borg seem to float in the air, and the reflections off the water pools in the courtyards further highlight the atmosphere that transcends everyday life.
Revell himself explained that he pursued in the design of the funerary chapel an ascetic and almost severe character. According to Tore Tallqvist (1989, p.74), the Vatiala chapel is poetry cast in concrete, which he defines as “noble simplicity and quiet grandeur”. The roof of the large chapel was clad with copper soon after its completion. The much darker copper roof of the small chapel is a legacy from the renovation at the turn of the 2000s.
Vatiala Chapel is listed on the DOCOMOMO Finland registered selection of important architectural and environmental modernist sites.
Text: Petteri Kummala / DOCOMOMO Finland
Location
Kappelinkierto 3, Kangasala
Get directionsGallery



























