Sampola
Sampola Adult Education Centre is a key example of Finnish expressive Rationalism, recently adapted to also house an arts high school.

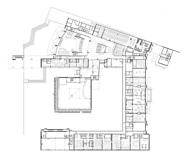
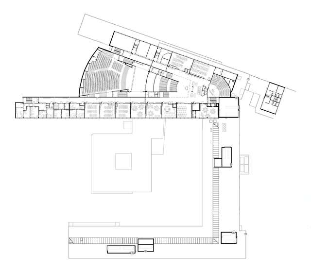
Timo Penttilä and Kari Virta designed the Sampola Adult Education Centre and folk school in the district of Kaleva in Tampere on the basis of their 1959 winning competition proposal. The building is one of the central examples of Finnish expressive Rationalism of the 1960s, an approach occupying the middle ground between the organic Modernism represented by Alvar Aalto and Constructivism inspired by Ludwig Mies van der Rohe. Sampola’s streamlined modernist wing buildings and the sculptural mass of the main auditorium complementing them have been sensitively placed in a location that is complex regarding the cityscape. The building, which represents the most refined concrete construction of its time, has stood the test of time both technically and architectonically.
In the middle of the planning of the renovation, a second main function for the building was introduced, in addition, to the adult education centre, namely an arts-based high school. According to Sinikka Kouvo and Erkki Partanen, the biggest challenge in altering the building for the needs of the new high school was in preserving its inspiring and well-preserved streamlined appearance. Certain solutions which clearly deviate from the building’s original expression were necessary.
Placing the new room programme in the existing building was a laborious task. The original distinctive architecture and the bearing structures were mainly preserved. The greatest changes were carried out in the low section surrounding the courtyard, where the specialised facilities for art education were placed. When renewing the use of the building and the ventilation system, it was possible to return the skylights that had been covered up in previous renovations, and which is a way give the teaching facilities an atelier-like character.
On the courtyard side, an approximately 100 m2 extension has been added for the purpose of providing a lift and storage spaces. New concepts of learning environments have added their elements to the interiors. The old wide corridors have partly been furnished as E-learning stations.
Text: Finnish Architectural Review 2/2014
Location
Sammonkatu 2, Tampere
Get directionsGallery






















