Tampere University Main Building
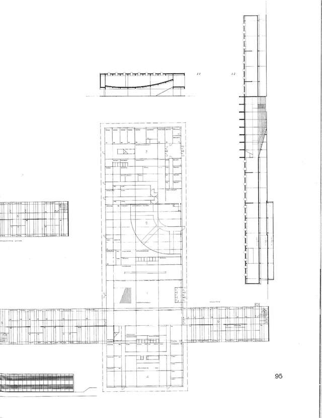
Tampere University’s main building organizes central shared spaces at its core and teaching and office functions in its wings.

Tampere University (Tampereen yliopisto) was established on 1 January 2019 as a merger between the University of Tampere and Tampere University of Technology. The new university is also the major shareholder of Tampere University of Applied Sciences. Tampere University Main Building was originally built for the School of Social Sciences, established in Helsinki 1925. In the 1950s it was decided that the school would re-locate to Tampere. The city of Tampere arranged a plot for the school from the Kaleva district, the southeast side of the downtown. The architecture competition for the new school building was arranged in 1958. Architect Toivo Korhonen’s entry won the architecture competition, and the building was completed in 1960. The School of Social Sciences was opened in Tampere the same year.
The two-storey building that spreads to the large plot surrounded by 7 to 10 storey buildings. Korhonen explained that the reason for planning a two-storey building was to separate it from the surrounding cityscape. The building consists of two wings that cross each other. The shape of the building was chosen due to functions of the school: the central areas (the main entrance hall, staircase, the assembly hall, a cafeteria and a restaurant) are located on the crossing areas of the two wings. Lecture rooms and offices are located in the wings.
Location
Kalevantie 4, Tampere
Get directionsGallery

















