Tuomarila Daycare Centre
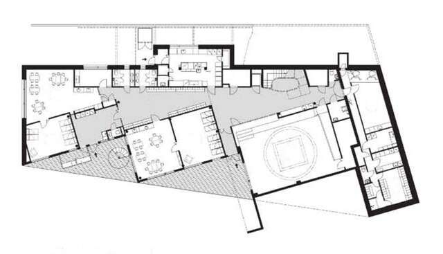
This daycare centre is organized around a broad, multi-use central corridor, with group rooms opening to the yard.

The Tuomarila Daycare Centre is situated at the heart of a residential area. The daycare centre is has a gentle white coat, but it makes no pretence of adapting to its surroundings; it boldly flings open the coat, showing off without shame the handsome, colourful chequered shirt of its belly.
A two-storey, relatively small public building has a spacious central corridor, which works as an entrance hall, as a play area and even as a central kitchen and dining area. The children’s group rooms, situated on the courtyard side cusps, offer views in different directions onto the playground area.
In the interior, the use of colour has been restricted to the wet areas and as identification colours of the cloakroom furniture. Otherwise, the spaces are completely white.
Source: Finnish Architectural Review 3/2010
Location
Puistotie 24, Espoo
Get directionsGallery

















