Suurpelto Daycare Centre

Suurpelto is a district in eastern Espoo that borders Ring Road II. The winner of the architectural competition for the daycare centre was announced in 2009, and the building completed in 2014. Adjacent to it is Opinmäki School, which is also the result of an architecture competition.
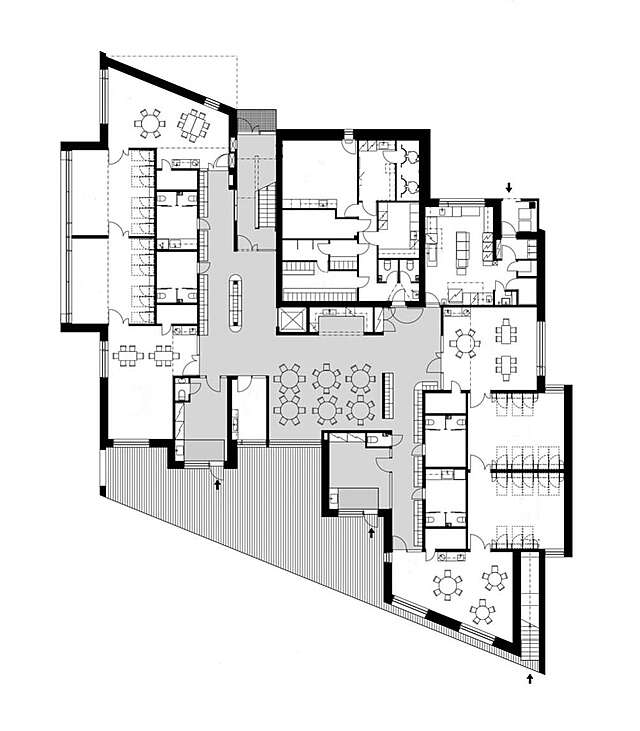
The plot of the two-storey daycare centre is cramped, so the architects’ solution of a distinct orthogonal form as well as dividing the plot into two different parts is excellent in terms of the effective use of urban space. The playground is on the south side of the building and connects directly to the Landbacka park, thus increasing the available amount of outdoor space. The north side is reserved for access traffic, and there the architects Claudia Auer and Niklas Sandås have created a balance between parking places and pedestrian routes.
Text: Finnish Architectural Review 4/2015
Location
Poppelikuja 4, Espoo
Get directionsGallery














