Bredanportti Apartment Block
Bredanportti apartment block is a rental building designed for flexible apartments and integrated into its street and slope context.

Playa Architects’ Bredanportti apartment block is a newcomer, standing at the intersection of the old and new. On the street side it is a dignified townhouse with large ground-level windows, while on the side towards the wooded slope it lowers in height and receives a sort of tail in the form of two-storey terraced houses. The apartment building is designed to be approachable on foot and is of a relatively moderate size. The slight recess from the street line and the square in front of the building provide the gestures typical of a small town, rather than an urban centre.
In the cold sunshine on a frosty day, the luminous white building seems to take its place with particular confidence, with the roof line lightly puffed up and the awnings giving a celebratory feel to the street level. The white, stripped balconies – and even their open base level with carefully laid out boulders – provide a clear yet referential link to the sugar-cube elegance of the 1960s.
According to the scheme’s main architect, Tuukka Vuori, the project, which started through a site allocation competition, proved to be a surprisingly complicated task on a complex plot, despite its relatively small size. The Bredanportti apartments are rental apartments commissioned by the developer A-Kruunu, and follow the state-backed ARA loan criteria. Achieving affordable housing has required making cost-effective and straightforward spatial and material choices, something which the architects, nevertheless, have been able to translate into a clear design solution.
The building’s appearance is counter-balanced by friendly details and cleverly chosen colours. At closer inspection, it turns out that the building’s ethereal glow is created by the silver paint on the concrete surfaces and the warm yellow colour reflected from the balcony ceilings.
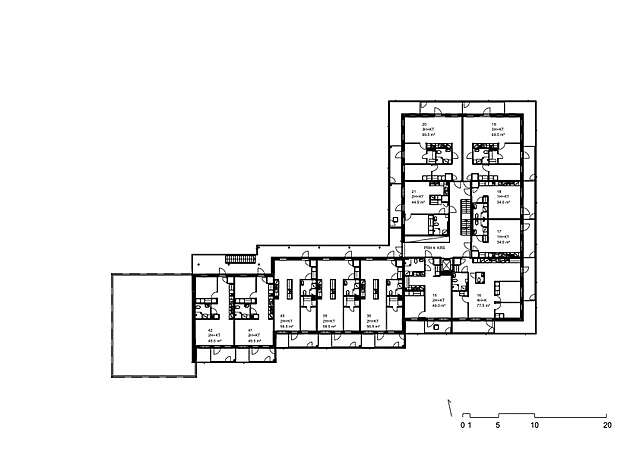
All the dwellings, with the exception of those on the ground level, are accessed via a single common stairwell. The combination of a centrally placed stair core and external access balcony has enabled a diverse distribution of apartments; the apartments range from single-room to two-room dual-aspect apartments and two-storey terraced houses. The sizes of the dwellings balance on the knife’s edge of affordable spatial economy and sufficient space, so that they usually allow for alternative furnishing solutions, even if the bedrooms end up small. The space formed by the living room, kitchen and dining area can be arranged in alternative ways, and there is a natural place for the dining table. The spacious balconies, divided into glazed and unglazed zones on all sides of the building, add an extra quality to the dwellings that the architects did not want to compromise on. The corner apartments have a balcony of several tens of square metres and a door leading out to the balcony from both the living room and bedroom. Three of the apartments include a large work or living space on the street level with its own entrance beneath an awning. It brings flexibility to living and working. The premise behind such a solution is a deviation from the provision for business space indicated in the town plan. The compromise has nevertheless been successful.
Source: Sanna Meriläinen’s review in Finnish Architectural Review 1/2021
Location
Bredanportti 8, Kauniainen
Get directionsGallery























