Runopuisto terraced house
The terraced house aims to preserve the area’s original atmosphere with spatially intense, flowing two-storey homes that connect to outdoor spaces.

Juha Leiviskä in the Finnish Architectural Review 3/2004:
When Vallila Library and Runo Daycare Centre were completed in 1991, the planned entity was not completed. There were two original wooden houses dating from the 1910s at the northern perimeter of the block, and their renovation was part of the original programme. Their preservation would have been of utmost importance, as in this part of Vallila only fragments of the original milieu survive.
The solution and scale of our timber-built library and daycare centre were based on the block’s existing building stock. At the time we wanted to ensure their preservation and elevate their status in the milieu. However, the renovations were delayed and the old buildings were allowed to rot.
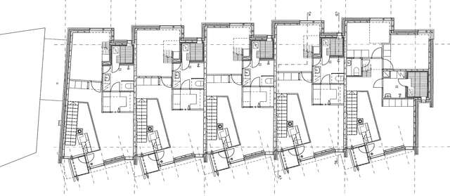
With the new terraced house designed in the place, our goal was to achieve the same spatial intensity and atmosphere that characterised the original milieu. The creased facades allow views from each house to four directions. The spaces of the two-storey dwellings flow into one another by the tall living room space. The relationship between the living room, the bedroom/library space on the gallery above and the south facing the garden, trees, afternoon sun and the back wall of the adjacent library is both urban and intimate. The interior spaces continue outside via balconies and patios.
Location
Vallilantie 12, Helsinki
Get directionsGallery
























