Mestari Daycare Centre
This daycare centre in Helsinki combines industrial-style architecture with hands-on, workshop-based learning spaces.

An old industrial area on the western edge of the city was transformed through the arrival of facilities for IT companies, offices and residential development in the early 2000s.
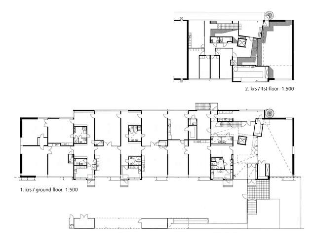
The daycare centre and school in the area operate according to the principles of Freinet pedagogy, which emphasises the importance of workshops and hands-on activity. Creativity, learning through doing, and growth being the cornerstones of operation, Mestari is actually more of a ”Children´s Workshop” than a typical daycare centre.
One side of the transverse, loadbearing concrete block walls is fair-faced, while a smooth finishing is applied on the other side and then painted. The interior view towards the west is grey, but towards the east, there is a sequence of colours beginning and ending with blue. These are the only colours used inside, in addition to furniture and the yellow of the rough plywood partitions. The atmosphere of an industrial building is strengthened by exposed services.
The architecture of the building is a synthesis of the ”spirit of the place” and the daycare centre’s educational philosophy. Mestari Daycare Centre is conceived as a space with a rather austere atmosphere that allows brisk and proper activity.
Mestari Daycare Centre was designed by architect Lasse Vahtera in a collaboration with the City of Helsinki Public Works Department. The building was completed in 2002.
Text: Finnish Architectural Review 5/2002
Location
Kornetinpolku 4, Helsinki
Get directionsGallery





















