Huopalahti Residential Barracks
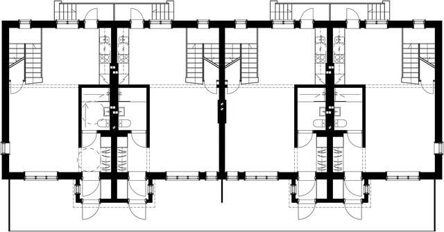
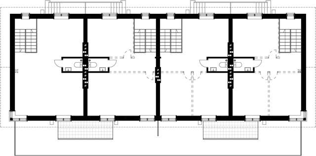
This four-apartment terraced house in Helsinki features solid wood structures, natural ventilation, and a steep gable roof, with a design that complements the surrounding historic buildings.

The four-apartment terraced house, built in a listed railway station park in Helsinki, is constructed with solid wood structures and has natural ventilation, the use of which is supported by a high attic created by a steep gable roof. Solid structures and natural ventilation are the basis of the architectural firm Livady’s work.
The building’s base is made of natural stone, while the air flues and firewalls separating the apartments are built of brick. The solid wood external walls utilise so called wave layered timber (WLT) elements, which contain no glue and are attached together with steel threaded rods. Inside, the walls are plastered with clay. Sawdust was meant to be used as insulation, but due to availability problems, cellulose wool was used instead.
The roof was made of around 6,000 recycled and reconditioned tiles originally manufactured by Kupittan Savi. The building is envisioned to have a lifespan of 400 years.
The features of the new building were designed to match those of the existing building stock around the plot: the residential buildings, a guardhouse built in the first decade of the 20th century and the Huopalahti Railway Station completed in 1924 and designed by architect Bruno F. Granholm. The design task included the renovation of an old red brick sauna and laundry building, which has now been refurbished to serve the residents.
Location
Kylätie 25 C, Helsinki
Get directionsGallery




















