Helsingin Studio Housing
Helsingin Studio Housing consists of two U-shaped buildings with a shared courtyard, emphasizing communal spaces and light-filled apartments.

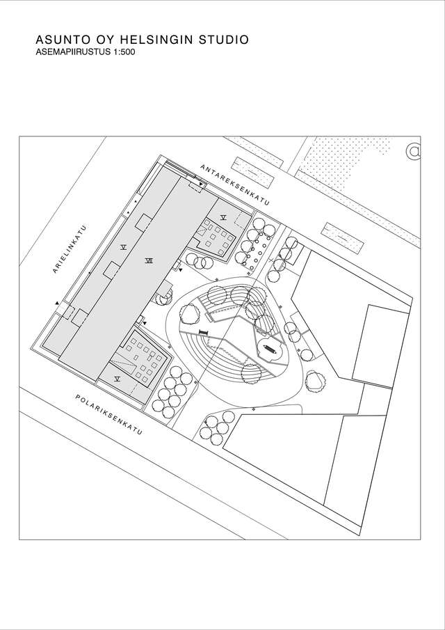
Helsingin Studio Housing was commissioned by Helsinki Housing Production Department, ATT, and was completed in 2013. It is located in Kalasatama area. The housing block includes two U-shaped buildings with a common courtyard.
There is no parking area within the bounds of the block and due to this, there have been more resources for the high-quality and diverse room programme. The local plan recommended green roofs for the area, but they have been replaced with lower courtyard-side terraces in both buildings. The terraces enable a communal space for residents’ activities and urban gardening. The extensive terraces also compensate some flats’ lack of balconies. Common spaces include a sauna section with a sea view, a roof terrace, and an outdoor fireplace. There’s also a club room, with its own balcony.
The character of Helsingin Studio Housing refers to industrial architecture but also to traditional city centre blocks. The facades on the courtyard side have been rendered in a light, cream colour. On the contrary, handcrafted-like quality brickwork has been used in the street elevations.
The flats of the Studio have a floor height above the norm. The windows cover almost the whole wall height, which enables the natural light to flow into the apartments and into the building. The whole construction project was an exercise in balance between accomplishing the high quality and stripping away all the unnecessary.
Source: Finnish Architectural Review 5/2013
Location
Arielinkatu 10, Helsinki
Get directionsGallery





























