Helsingin Huvitus Housing
The row houses in Vuosaari feature a black tar exterior and practical interiors, with efficient use of space and natural light.

One often hears Finnish residential development being accused of over-using standard design solutions. The row houses designed by Kirsi Korhonen and Mika Penttinen in Vuosaari, Helsinki have a specific Finnish look, but one can hardly accuse them of lacking character. The black tar paint used on the exterior provides the building with not only a distinct dark colour but also a specific smell. For architects the colour of the tar was, of course, black.
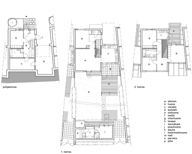
The lot is located on a slope facing north, and because of this the entrance to the units is through a basement-like ground floor. The stairway leading directly from the entrance to the main floor takes one to a space between the living room and the kitchen. Once on top of the stairs one can admire a beautiful view over to the garden and the sauna building in the back. The slope has enabled the units to be supplied with a warm garage in the basement, something many residents will undoubtedly appreciate when getting home with shopping bags on a rainy winter night now common in the south of Finland.
The dark colour dominating the exterior of the buildings is nearly forgotten once inside the house. The light walls, plywood-covered ceilings and exposed beams create a wonderful atmosphere of a wooden building, even if the core of the first floor is concrete. The row house has plenty of facade surfaces, and the rooms and stairways are exposed to daylight from many directions. In the kitchens the window between the top and bottom row of kitchen cabinets provides a lifeline to the street, and in the top-floor bedroom with windows to two directions there is a balcony, which is also connected to the economy-size utility room.
The developer, the Helsinki Housing Production Department has provided the architects with an opportunity that Korhonen and Penttinen have managed to utilise successfully. There are no superfluous tricks on the facades or the interiors. The houses have been designed and finished with style to the tiniest detail. Situated within a few hundred metres from the metro station these row houses in Vuosaari could very well present an alternative for the single family house reached by highway in Nurmijärvi.
Location
Omenamäenkatu 7–27, Helsinki
Get directionsGallery
























