Tapiolan Aino and Sampo Housing
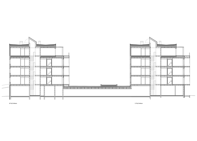
The Kaupunginkallio estate in Tapiola features three new apartment buildings, modern interpretations of the area's architectural style.

Kaupunginkallio estate in the Tapiola area of Espoo is part of the core of the nationally significant garden city. Most of the buildings are based on designs of Aarne Ervi from the 1950s and 1960s, with the interactive relationship between nature and the built-up environment used as the main starting point of building design.
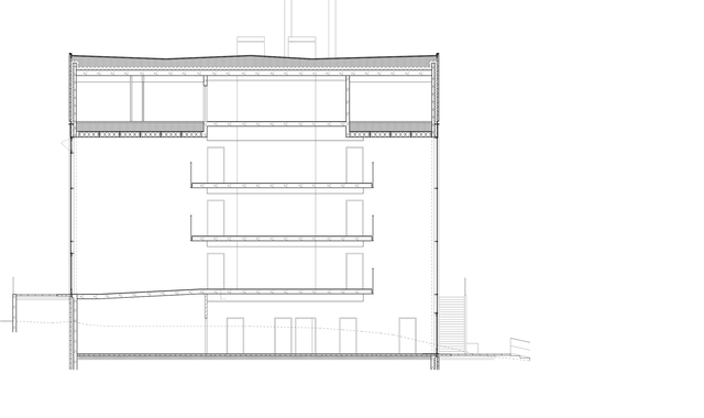
Three new apartment buildings have risen in the area. The winning entry of the architectural competition organised for the project was described as a modern interpretation of architecture characteristic of Tapiola. The clean lines make the buildings timeless and straightforward in nature. Balconies protruding as cantilevered structures alternate with white plastered walls on the facades of the buildings. Penthouses with individual terraces are located on the roofs of the point-access buildings as fifth floors.
The ground floor of the buildings is built of units cast of white concrete toned with black in steel formwork. The facade surface of the fifth-floor penthouse apartments, on the other hand, is a shiny black clinker brick surface with joints of concrete toned with black. The facades of floors 1 – 4 consist of an insulated render system. The buildings have a total of 40 apartments ranging from one-bedroom 60-square metre to almost 280-square metre penthouse apartments. The layout plans are versatile allowing modifications according to different life stages. Every apartment has its own mechanical ventilation system with heat recovery and a cooling function.
Text summarized from Sirkka Saarinen’s article in Betoni 1/ 2014.
Location
Kaupinkalliontie 1, Espoo
Get directionsGallery


























