Aurinkolahti School
Aurinkolahti School and Daycare Centre site is bordered by an avenue and a park with formal gardens and a 1920s villa. Several old trees were preserved during the construction.

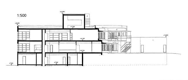
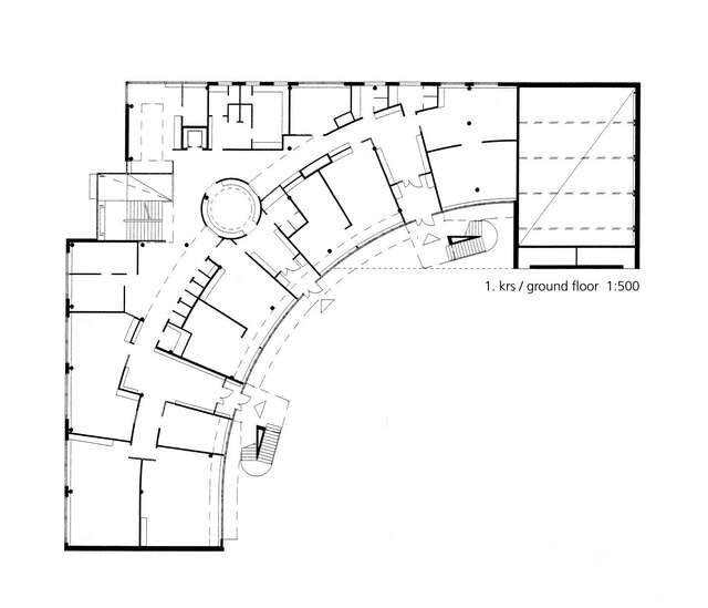
The idea behind the town plan has been to create a building that would act as a vibrant centre of activity for the area along the avenue. Therefore, facilities housing afternoon and evening activities, including the canteen and hall spaces are located close to the avenue. The main entrance is in the courtyard. Elevations towards the street and the alley are wall-like and urban in character, the courtyard side being softer, having closer affinity to nature and a smaller scale.
The principal objective was the joint use and interlocking of school and daycare facilities so that children of different ages get used to one another. Workshops and facilities for small groups form an essential part of the building, which is primarily an environment for children, where even the traditional, rectangular classroom has been modified into a space that contains little nooks and crannies here and there.
The principal architect of the building was Kaarina Löfström. She was assisted by architect Mika Suominen.
Text: Finnish Architectural Review 5/2002
Location
Villiruusunkuja 4, Helsinki
Get directionsGallery




















