
In autumn 1940, Eino Pitkänen designed a new residency for the chief executive officer of the industrial enterprise Kajaani Oy, replacing the old building destroyed in war. From 1941 to 1989, Villa Koskikara served in its original use as the CEO’s residency, after which it was in corporate use until 2019. Today, the building serves as a private home.
The villa was situated on a hill sloping towards the southern shore of River Kajaanijoki and a park-like environment was created around the house. The architecture corresponds well to the use of the building. Its modeling is based on geometrical forms typical of Functionalism, cubes and cylinders. Ribbon windows, another feature characteristic to Functionalism, were used in a vertical fashion in rows of five or six windows and in an ascending formation to mark the stairs inside.
The building is masoned of brick and plastered with mineral render, containing different-coloured pieces of broken glass. Originally the entrance’s façade was highlighted with a wooden pergola, typical of Pitkänen’s designs, but later on, the light structure has been replaced with a more heavily structured canopy.
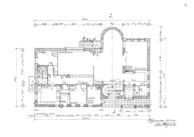
Villa Koskikara has two floors and a basement. The more formal reception rooms were placed on the ground floor while the private living quarters are in the first floor.
In the interior design, one can detect details typical of Pitkänen’s works, such as door handles and fireplaces produced by Primo Oy and designed by Pitkänen himself. There are two fireplaces in the house, one downstairs in the chief’s room and one in the upstairs hall. The beautiful stairs leading up from the entrance hall can be considered a self-standing work of art and, in addition, a glass sculpture by sculptor Yrjö Rosola (1904–1989) is placed in the window line.
Text: Päivi Tervonen
Location
Brahenkatu 5, Kajaani
Get directionsGallery































