Koivukoski I-II Power Plant

Koivukoski I-II is a small power plant located in River Kajaanijoki that flows through downtown of Kajaani.
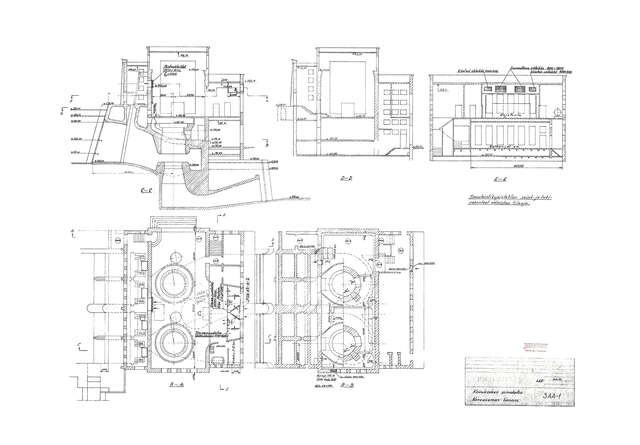
The power plant was originally built by Kajaani Lumber Company for its own use. The power plant was designed by architect Eino Pitkänen and it was finished in 1943. The plant was acquired by Kainuu Power Company in 1995 and nowadays the plant produces power for the company’s customers. The plant’s two turbines have a maximum production capacity of 6.5 megawatts. The head of the power plant is 9 metres.
The cube-like mass of the power house is divided into three sections; the machine hall, the gate hall and the office block. The regulating dam has two spillway openings with radial gates. The power plant had a challenging construction site because it’s in the vicinity of the ruins of the medieval Kajaani Castle. Pitkänen solved this by using rustic natural stone blocks in the lower part of the power houses façade to connect the power plants architecture with the ruins of the castle.
The city’s business district was built in accordance with the functionalist planning principles during the economic boom of 1940s and 50s and designed also by Pitkänen. With its urban setting, Koivukoski I-II is a part of this modernist city centre.
Text: Samuli Paitsola
Location
Koskikatu, Kajaani
Get directionsGallery






















