Vekaranjärvi Garrison Centre

A major restructuring of the Finnish Defence Forces took place in the 1950s and 1960s when the garrisons in urban centres were transferred to rural areas, to modern and strategically better placed “wilderness garrisons”. The project’s clear regional policy objectives were laudably combined with architectural ambition. A key architect in the change was Osmo Lappo, who designed the central areas of the garrisons in Säkylä (1963-67), Kajaani (1962-68) and Vekaranjärvi.
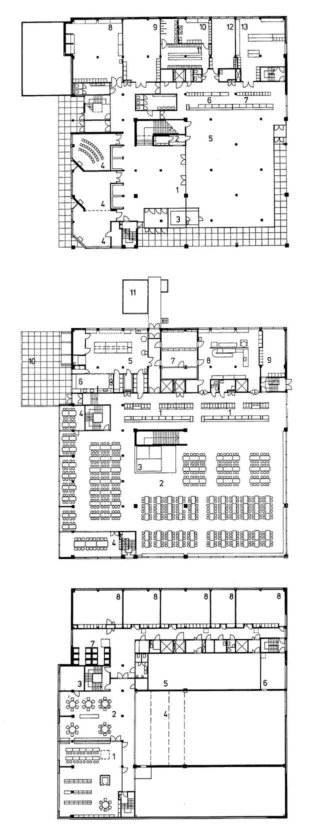
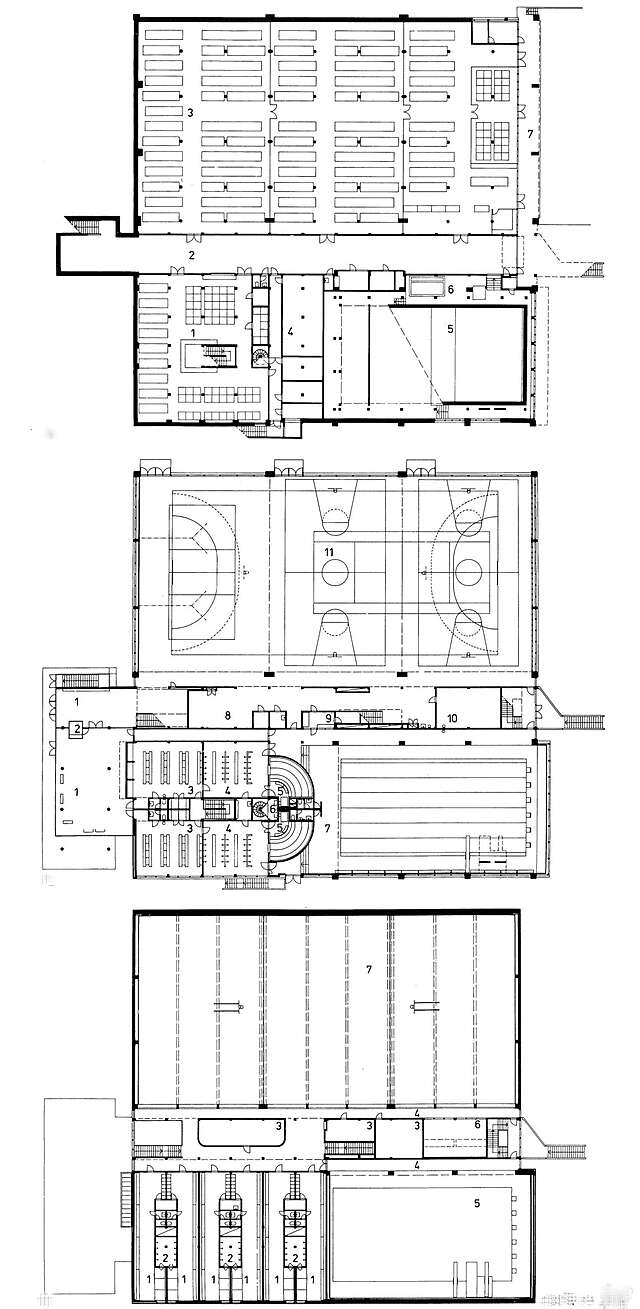
The central area of the Vekaranjärvi barracks, situated about 40 km north of Kouvola, comprises a sports hall, soldiers’ mess, cinema and canteen, each of which were freely placed around a rectangular central square. The 3000-strong garrison force provided guidelines for the scale: the dining room has a capacity of 1250 people, the soldiers’ mess 1000 and the cinema 540. The sports hall comprises three gym halls and an indoor swimming pool. Events involving the entire garrison can be held in the central square.
The complex is architecturally minimalist and consciously coarse-grained. The 2-3-storey buildings comprised of a pillar frame construction were built mainly with cast in-situ reinforced concrete. Despite the buildings’ military character and the magnitude of the scale, Lappo had by means of various recesses and fenestration designs managed to avoid “supermarket-type boxes without any scale” (Arkkitehti 1/1975, 24). The concrete surfaces have traces of the shuttering, thus creating a lively relief. In addition, the buildings have been placed carefully in relation to each other and the ridge landscape, and consequently the centre of the barracks area forms a cohesive milieu of large concrete sculpture-like objects.
A special feature of the Vekaranjärvi barracks area is the supergraphics by artist Howard Smith, which Lappo wanted as a counterpoint to the grey general tone. There are three nonfigurative works by Smith in Vekaranjärvi: in the conscripts’ room of the soldiers’ mess is ‘Yellow Parade’, on the rear wall of the canteen is ‘Target’, and on the exterior wall of the cinema is ‘The Battle of Loimola’.
The Vekaranjärvi barracks area is in the use of the Karelia Brigade, and its basic architectural characteristics have been well preserved. The barracks buildings are due to be renovated in stages by the year 2020.
Vekaranjärvi Garrison Centre is listed on the DOCOMOMO Finland registered selection of important architectural and environmental modernist sites.
Text: Petteri Kummala / DOCOMOMO Finland
Location
Varuskuntatie 230, Kouvola
Get directionsGallery





























