Riihimäki Sports Park
The construction of the Riihimäki sports park and baths is a piece of Finnish post-war architectural history.

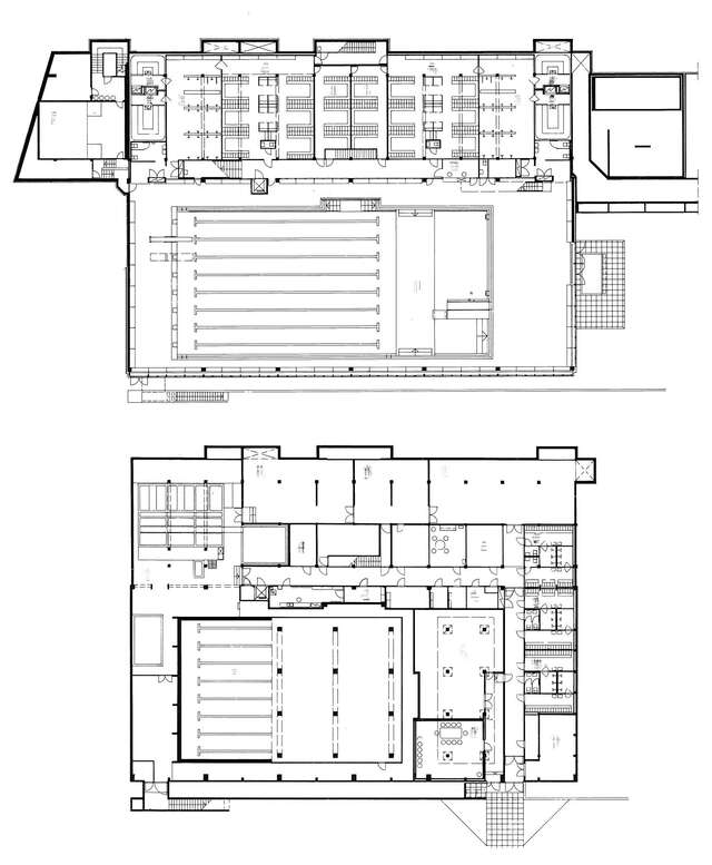
The overall plan for the sports park was drawn up by Yrjö Lindegren in 1950. The water tower, designed by Erik Bryggman in 1952, is a prominent landmark on the northern slope of the Salpausselkä ridge. The open-air swimming pool designed by Yrjö Lindegren was built (after Lindegren’s death) in 1955 under the direction of Aulis Blomstedt. The sports hall and school, designed by Raimo S.O. Valjakka and completed in 1967, are situated in the northern end of the park.
The outdoor area for the open-air swimming pool has been rearranged, and the learners’ and children’s pools and the outdoor showers have been renewed. The sunbathing platform on the roof of the building has tables, chairs and greenery.
The building has three storeys and a basement. The third floor, or roof floor, contains sales booths and the extension of the outdoor pool area. The second floor consists of the entrance hall and special services: hireable sauna, keep-fit room, massage room, café and hairdressers’ shop. The pools, changing and washing rooms, sauna and squash court are on the first floor. The technical and social facilities and the changing rooms for the sports fields are in the basement.
The frame of the building consists of reinforced concrete pillars and walls cast in situ and massive reinforced concrete basins and beams. The main beams of the main hall are post-tensioned concrete cast in situ. The bottom slab of the main pool and the walls are post-tensioned concrete structures.
The façade materials are of-shutter concrete, glass and aluminium plate anodized to a silver grey. Cast fair face concrete surfaces have also been used in the main hall. The wall painting in the main hall was done according to a design by Howard Smith.
Source: Finnish Architectural Review 8/1980
Location
Salpausseläntie 16, Riihimäki
Get directionsGallery
























