Töölö Library
Designed by Aarne Ervi in 1970, Töölö Library is a modernist landmark and one of Finland’s first music libraries.

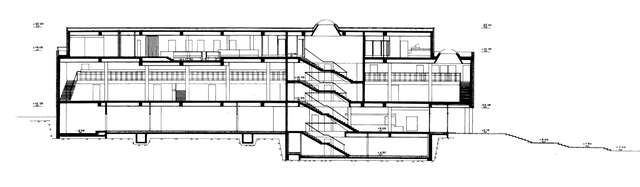
Töölö Library in Helsinki, designed by Aarne Ervi and completed in 1970, bears resemblance to the architecture of Alvar Aalto’s Viipuri Library. Equally ultramodern in its own context, it is also a white object in the park, and the flowing sequence of library spaces follows a logic similar to the one in Vyborg. Töölö Library had one of the first modern music libraries in Finland.
Mustonen Architects were in charge of the 2017 restoration of Töölö Library.
The text is an extract from the chapter ‘Human Potential’ of Mind-Building, Finland’s exhibition at the 16th International Architecture Exhibition of La Biennale di Venezia.
Location
Topeliuksenkatu 6, Helsinki
Get directionsGallery


































