Sandels Cultural Centre
The centre's architecture emphasises space and light, with flowing spaces connecting the building’s diverse functions.

Extracts of Jorma Mukala’s critique published in the Finnish Architectural Review 5/2007:
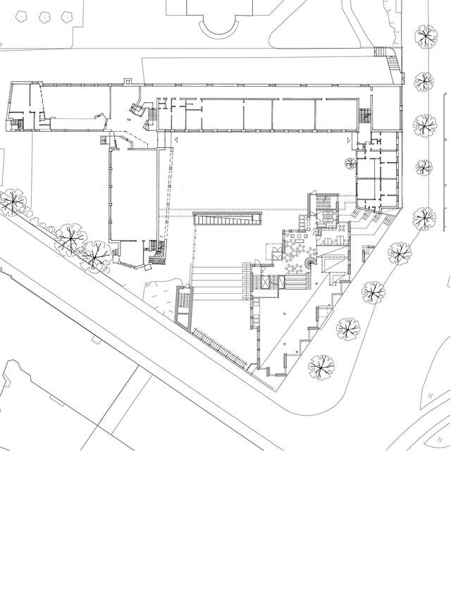
The space requirements for the cultural centre were challenging, as the building houses many activities – a cáfe and lobby, a hall, youth club, high school teaching facilities, a music school, office premises, and in addition, internal connections to the adjacent school. The street-level lobby and cáfe of Sandles open out onto the square, and space extends right into the courtyard – allowing interaction in both directions. The lobby acts as a space linking different activities. The ground plan of the second and third floors is divided into a tripartite structure, and even from the corridors there are diverse views of the square and of the courtyard.
Leiviskä’s architecture emphasises space and light, while other central elements are the flowing series of spaces and gradual transitions from one space to another. The unified body of the building and the façade openings assume their form as a result of interaction between interior and exterior spaces. The vibrancy of the spaces derives from the use of light and their rich variation of the prospects that are opened up.
The architect wanted to keep the Sandels building in one block-like piece. The stepped façades end at the eaves line in a uniform horizontal line, which gives tension to the whole. The straight silhouette fits in well among the straight eaves lines of the buildings surrounding the square. On the façade facing the square, two planes have been placed as a pedestal for a public work of art.
Location
Topeliuksenkatu 2, Helsinki
Get directionsGallery
































