Sello Library
Set beside a busy shopping centre and concert hall, Sello Library has become a central gathering place thanks to its open architecture and mix of public services.

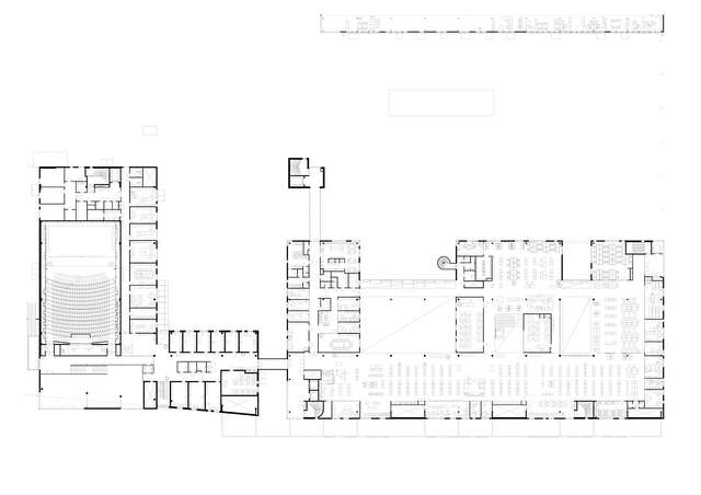
The Sello Library is part of the commercial and administrative premises of the Leppävaara district in Espoo. The library was one of the first in Finland to be located adjoining a shopping mall. Together with Juvenalia Music Centre and Sello Concert Hall, lining the Viaporinaukio square, the library quickly took its place as the new action hub of the rapidly growing and fragmented urban area.
The airy, unpretentious architecture, excellent location, diverse services and eventful programme produced in partnership with Espoo Youth Services have contributed to the appeal of the Sello Library as a public living room, workshop facility and community space.
Originally the library included a story-time theatre called the Bubble. The theatre was located in the children’s section, but it was demolished during one of the many renovation projects undertaken since the opening in 2003.
The ‘Bubble’ scale model and a video piece ‘This is the Sello Library’ by artist Helmi Kajaste were presented in the Mind-Building exhibition at the 16th International Architecture Exhibition of La Biennale di Venezia.
Location
Leppävaarankatu 9, Espoo
Get directionsGallery
























