Majamaja Village for off-grid living
Majamaja is a customizable, off-grid cabin featuring solar power, rainwater collection, and composting toilets, with a focus on minimizing environmental impact and promoting personal responsibility.

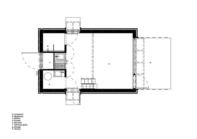
Majamaja is a concept for a prefabricated free-time cabin. The external shape is customisable: the roof angle, the layout of the terrace and the facade material are chosen according to the site where it will be constructed. The type allows the cabins to be grouped into villages, thus sparing untouched nature.
The cabin does not have a sewage system, which allows it to be positioned according to the forms of the natural terrain. It can be set up on pillars without modifications to the terrain or installed on the water’s edge, or even above the water. The minimalistic, iconic shape of the cabin has its roots in the boatsheds of the archipelago. A version for the Mediterranean is under work, where the angle of the sun is different and the solar panels require a differently shaped roof.
The energy self-sufficiency of the Majamaja cabin is mainly achieved with solar panels. For energy storage, the cabins have batteries originally developed for military use. When there are several Majamaja cabins placed together, such as the five at Vuorilahdenniemi, Helsinki, it will be profitable to install one’s own wind-power unit as an energy source for the periods of darkness. Heating and cooking are handled by a gas appliance developed for caravans and boats.
Clean domestic water is produced from rainwater with a house-specific closed-loop water treatment appliance, which also recycles grey water for reuse. Nothing is let back into nature. The number of rainwater tanks can be increased in the space reserved for them in the floor construction. The urine-diverting dry toilet allows easy composting of the toilet waste for soil improvement.
The basis of the thinking behind Majamaja is to increase responsibility and the understanding of the limited resources and impact of one’s own actions upon them by bringing the energy and water supply as close as possible to the end user. This makes it possible to control waste management, as well as water and energy consumption, by changing one’s personal habits. The benefits are motivating because they are personal, immediate and visible.
Source: Architect Pekka Littow’s interview in the Finnish Architectural Review 2/2021
After two years of testing, the first Majamaja mini-village is open for short-term rentals in Helsinki since spring 2023.
Location
Vuorilahdentie 5, Helsinki
Get directionsGallery
























