Hopealaakso Daycare Centre
This daycare centre in Kruunuvuorenranta demonstrates the integration of cross-laminated timber into contemporary educational architecture.

In Finland, CLT structures have recently proven especially popular in buildings for education. The award-winning Hopealaakso Daycare Centre is an example of issues that designers have to solve when new material is integrated into conventional systems of design and construction.
For the past two decades, a wave of cross-laminated timber has swept across Europe, and at last it seems to have arrived in Finland. The emergence of several domestic producers means that CLT panels can now be sourced from the forests of Finland and put to use in public and private projects across the country. In principle this new material can be applied to a wide range of building types, but to date, it has proven especially popular in buildings for education. Of the nine projects short-listed for the 2021 Finnish Wood Prize, nearly half were devoted to programs of learning, all of them built with CLT. From that field of worthy competitors, the Hopealaakso Daycare Centre by AFKS architects was chosen as the most outstanding example of wooden architecture in the past year. The building is a deserving recipient of this annual prize and a welcome addition to the rapidly developing area of Kruunuvuorenranta.
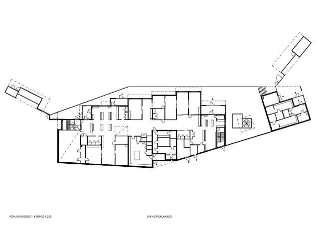
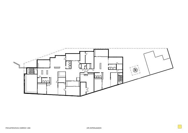
Situated at the western edge of the Laajasalo peninsula, the two-storey building is easy to distinguish among the residential blocks of the surrounding neighbourhood. The building’s uniform facade of zinc-coated steel faces the main thoroughfare of Koirasaarentie, presenting almost an industrial image . Three protruding rooflights and a scattered series of windows give hints of the spaces inside, but from the street, the building appears almost as a piece of municipal infrastructure for the adjacent park. From the north, the view is altogether more inviting. A series of stacked timber volumes emerge from beneath the shell-like roof. Projecting toward the park and covered with vertical timber cladding, these elements gesture toward the landscape, and large apertures open their interior spaces to the playground and park. Throughout the interior, light floods in through windows and skylights to fill each space with a warm glow. The structural timber panels, covered only by a translucent coat of white paint, reflect light throughout the shared spaces while glass partitions allow for visual connections across and between floors. The texture of timber both inside and out adds a rich sensory quality to the space.
At Hopealaakso, the units are distributed across the building’s two floors. Seven wooden volumes of 150 sqm contain rooms for quiet activities and focused learning in groups of 30 children. Outside of these spaces, a shared zone provides access to common facilities such as toilets and workrooms, while also serving for communal functions such as dining and gathering. At the western end of the building, an event space on the ground floor is accessible by a separate entrance to allow for after-hours use by the surrounding community.
Source: Philip Tidwell’s review in Finnish Architectural Review 2/2022
Location
Koirasaarentie 31, Helsinki
Get directionsGallery

























