Kankaanpää Art School
The school has well-lit studios, shared facilities, and a central hall to enhance flexibility and interaction.

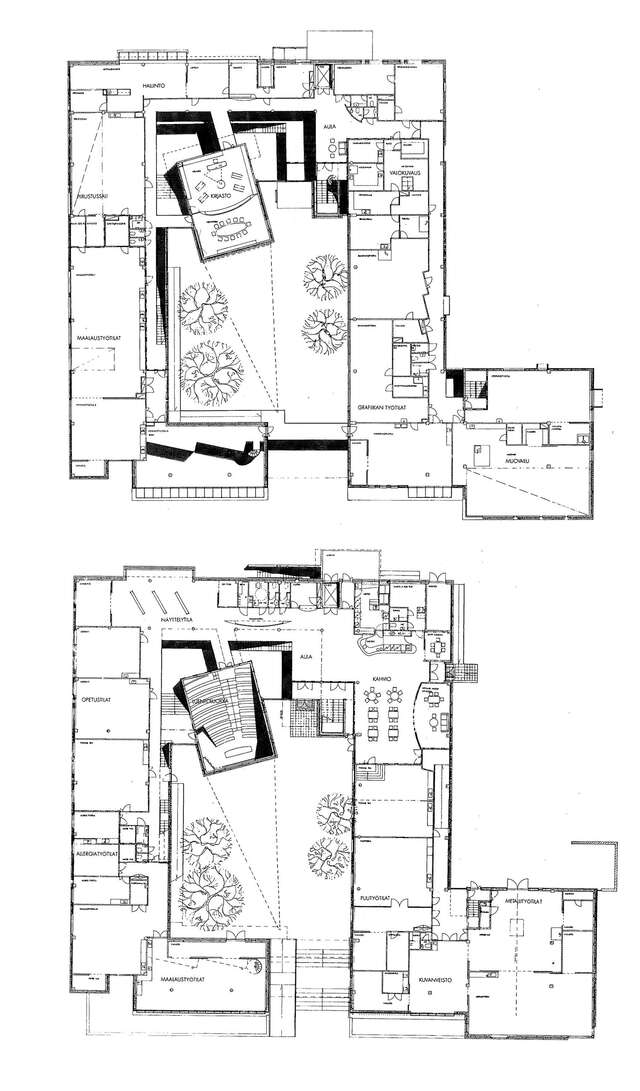
The completion of the new building of the Kankaanpää Art School coincided with the 30th anniversary of the school, a vocational institute for training professional artists. The site is situated near a recently completed municipal office centre, at a kind of boundary in the urban fabric. The aim here was that the school with its façade would serve as a mediating element between the developing office centre and the surrounding townscape. The school stands on one side of Eläintori Square, creating a new locus in the urban setting.
Most of the building is two storeys high, with facilities group around a central courtyard, which is entered from the Eläintori Square. The courtyard was planned to be used for exhibitions and installations, as well as other activities such as concerts, performances or films. The entrance hall of the actual building is designed to be a central interior space in the school; the shared facilities such as the cafeteria, library, exhibitions spaces and the lecture hall, all give onto the three-storey hall. The aim was to provide the school with a functional focal point which would both facilitate orientation and also act, with its lightning and materials different from those used in the classroom and studios, as an inspiring central space.
The requirements of an art school differ considerably from those of a normal school. One crucial factor for the successful functioning of such a school is lighting. The solution at Kankaanpää is designed to employ traditional and proven lighting methods, with natural light from northern and easterly directions used in a maximum number of classrooms. Some of the classrooms have a studio-like high ceiling, with light entering from above. The building is also designed to communicate its function to its surroundings: the large drawing class with its extensive glass surfaces and the facilities for sculpture and modelling, all give onto Eläintori Square.
The loadbearing structure of the building is steel-reinforced concrete, some of which was cast on-site, other parts being made of precast concrete elements. The façade is made of Leca blocks with a grout-was finish, weather-resistant steel sheeting, and glass. The principal aim in the design was to create an unbroken, integrated whole. Most of the furniture and fixtures were expressly designed for this particular building.
Text: Finnish Architectural Review 5/1995
Location
Paasikivenkatu 24, Kankaanpää
Get directionsGallery




















