House of Culture
The House of Culture consists of an office wing, an auditorium, and a lower wing around a piazza, with a concert hall designed for good acoustics.

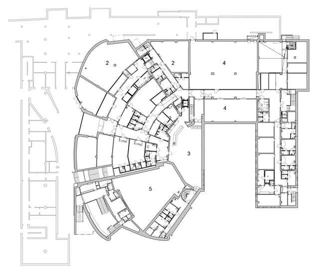
The Finnish Communist Party asked Alvar Aalto in 1952 to draw up plans for a building complex combining the party headquarters, association facilities, and a cultural centre on a recently acquired site beneath the Alppiharju cliffs. Aalto tackled the job as three separate assignments, giving the building a tripartite structure. Originally the whole complex was to be faced with red brick, but the plans later changed. Aalto built a rectangular, copper-clad office wing with five storeys above ground and a large, free-form auditorium of red brick connected by a lower wing, forming a small piazza. The house was inaugurated in 1958.
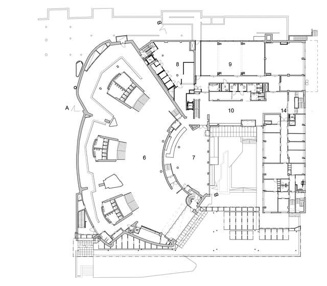
The office wing contains offices, meeting and conference rooms, and hobby rooms. The connecting wing contains lobby services, a lecture auditorium, classrooms, meeting rooms, a library, and a large gymnasium at basement level. The main rooms of the auditorium wing are a large congress and concert hall with seating for 1,500, a restaurant, and a small basement cinema (today used as a meeting room). The whole complex is held together by a column-borne copper canopy that runs alongside the street for 60 metres and forms a portico to the little piazza, which features a fountain by Wäinö Aaltonen in the form of an open hand. The monolithic exterior of the auditorium wing displays variously bent brick surfaces, which could not have been built without the specially manufactured standard wedge-shaped brick invented by Aalto for the purpose.
According to Aalto the form of the House of Culture auditorium was dictated by acoustic considerations: “The various uses of the room require first-class acoustics, which is the reason for the form, a concrete helix combined with wood and brick.” Aalto’s hopes were fulfilled: the House of Culture became known for its excellent acoustics, and is used frequently for concerts as well as orchestra rehearsals and recordings.
Extract from the Finnish Architecture Biennial Review 2014 jury report:
“Alvar Aalto’s sculptural landmark from 1958 still serves its original function. The concert hall and intermediate section continue to provide a versatile venue for cultural events, conferences and lectures, and the office wing houses the National Board of Antiquities. This is a very good example of a successful and inspiring renovation: the building looks as it originally did, despite the fact that all technical installations have been totally renewed, vertical accesses added, light fixtures renovated and doors changed. All the new equipment has been retrofitted with the utmost discretion.”
Location
Sturenkatu 4, Helsinki
Get directionsGallery

































