Carenia & Linnankatu 8 Housing
Carenia and Linnankatu 8 are seven-storey modernist housing co-operatives in Turku, featuring varied apartment layouts, and a shop and office wing.

The two modernist housing co-operatives, Carenia and Linnankatu 8 adapted Le Corbusier’s Unité D’Habitation concept to Turku at the beginning of the 1960s. It was designed by architects Pekka Pitkänen and Olli Vahtera.
The monumental scale housing development, located near the river Aura, consist of two blocks of flats, joint together with an office and business premises wing. It forms a landmark in the streetscape of the city centre.
The empire style buildings on the riverside of the block were protected in the city plan as the first major modern protection decision. The Trapp house by Charles Bassi (1829-1830) was restored as offices by Pekka Pitkänen. The former Turku sugar factory (1754-1756) by Christian Friedrich Schröder with the extension (1814) by Carl Ludwig Engel was restored in 1965 by Olli Vahtera.
The two modernist housing co-operatives have seven storeys lifted up on concrete pilotis. A forced ventilation system was built to both Carenia and Linnankatu 8. The facades are mainly of brick painted white, with teak screens and coloured panels between windows on the northeast façade and white minerit plate over the balcony and bay windows. The balconies and the adjoining bay windows are directed obliquely to the view towards the river. In Carenia by Urakoitsijat Oy, the doors to the balconies vary from one side to the other. Linnankatu 8 has somewhat less detailing, and it was built by Rakennus Oy.
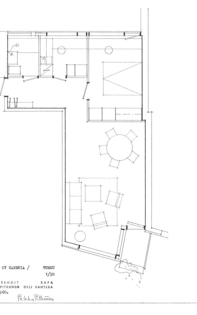
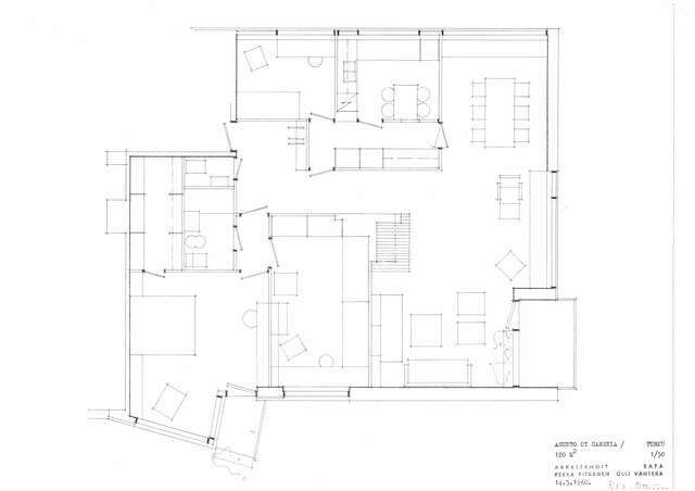
On the Linnankatu street side of the plot, there is a two-storey shop and office wing, joining the two buildings together. In both buildings the basic solution in the middle lamellas is 30 – 34 m2 studios and 46-50 m2 two-rooms. In the gables there are large 118-120 m2 apartments. In the upper floors the smaller units have been combined to form larger apartments. On the top floor, the 84 – 78 m2 three-room apartments have open stoves.
Text: Mikko Laaksonen
Location
Linnankatu 6, Turku
Get directionsGallery
























