Domus Aboensis Student Union Dormitory
Domus Aboensis is a student housing building in Turku from 1964, featuring two staggered four-storey blocks and prefabricated concrete facades.

In 1964 the student union of the Åbo Akademi university commissioned a construction company to build a dormitory to the campus area, near the heart of the old city of Turku. The height of the building was limited and the street was not extended, due to the surrounding wooden house streetscape. Domus Aboensis limits the Piispankatu streetscape, but the two four-storey volumes have been staggered in the terrain alike the surrounding wooden buildings. The development of the dormitory abandoned the principles of city renewal of Turku. The way building was fitted to the wooden house district was unusual at that time.
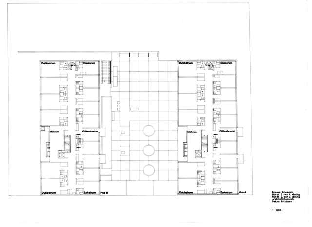
Originally building had 36 both one-person and two-person rooms and twelve two-room apartments for married pairs. The two-person rooms were directed toward the yard and the one-person rooms and the apartments toward the street; apartments also had a balcony. All rooms had a private toilet with shower. On the yard side there was a communal kitchen on each floor, with a large balcony. On the ground floor there was a café and club spaces. In the northeast side there is a corridor connecting both blocks.
The facades were constructed of pre-fabricated concrete slabs cast in steel mouldings, marking the building as an honest representative of its own time. Originally the building had Fennica Ruska curtains by Kirsti Ilvessalo in four different shades to give facades some colour. The facades have later been rendered, the surface replicating the original pattern.
Text: Mikko Laaksonen
Location
Piispankatu 10, Turku
Get directionsGallery






















